La edificación posee un funcionamiento higrotérmico y un confort interior óptimos al seguir los conceptos que definen una passivhaus o edificio de consumo energético casi nulo. Para ello, se ha generado una envolvente higrotérmica con gran capacidad aislante y con una lámina de estanqueidad que además actúa de barrera ante las ondas electromagnéticas. Sin puentes térmicos o minimizando estos al máximo posible. Las carpinterías se sitúan en el plano exacto de la envolvente térmica y se cuida al máximo su colocación de cara a la estanqueidad. Se coloca un sistema de ventilación de doble flujo con recuperación de calor de hasta el 95% y refrescamiento nocturno por bypass. A esta red de ventilación se le ha añadido una batería de agua caliente para que calefacte el aire impulsado a las distintas salas. Esta batería se conecta al sistema de aerotermia instalado. La aerotermia se compone de un depósito de ACS con una bomba de calor incorporada de alto rendimiento que extrae energía del propio aire del ambiente exterior.
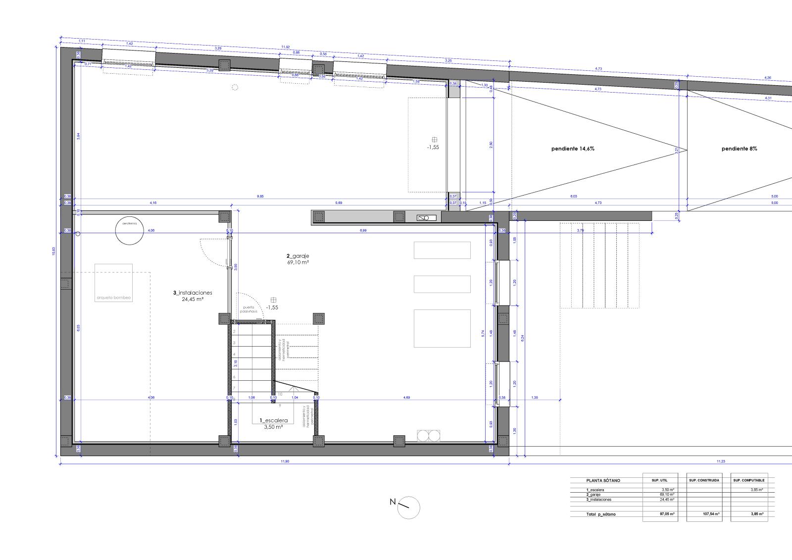
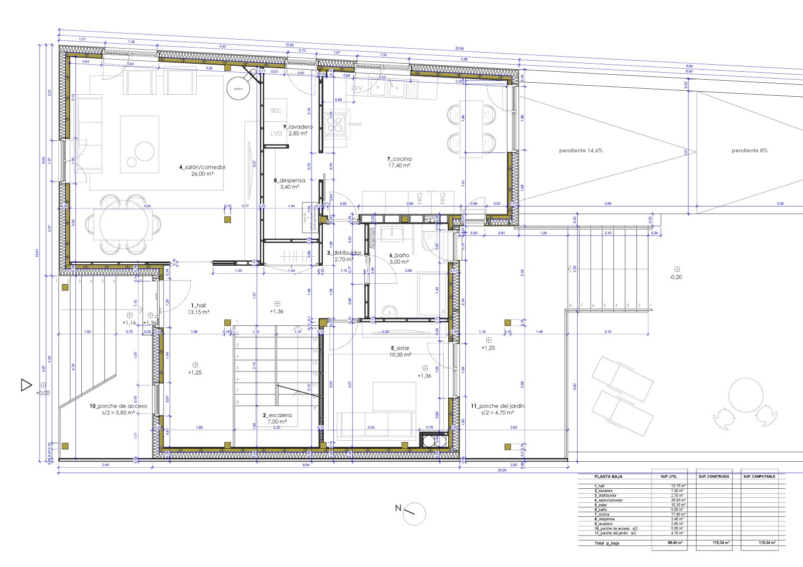
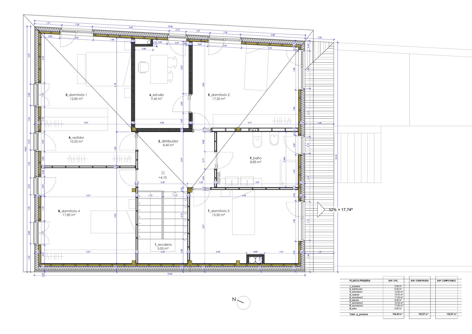
El programa de la vivienda se desarrolla de la siguiente forma: En la planta baja se dispone un porche que da acceso directo al hall al que se conectan escalera, salón principal, salita de estar, cocina y baño completo. La escalera comunica los tres niveles de la vivienda; sótano, planta baja y planta primera. El sótano está formado por un garaje con varias plazas de estacionamiento para vehículos (coches, quads y bicicletas), rampa de acceso rodado y la sala de instalaciones. En la planta primera, la escalera que arranca en la planta baja desembarca en un distribuidor que comunica con los 4 dormitorios dobles y un baño completo. Conectado a uno de los dormitorios existe una salita aislada que sirve de despacho.
- 345 m²
- 2011-
- Paredes de Monte, Palencia.























