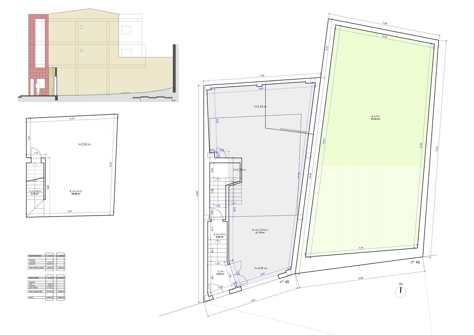
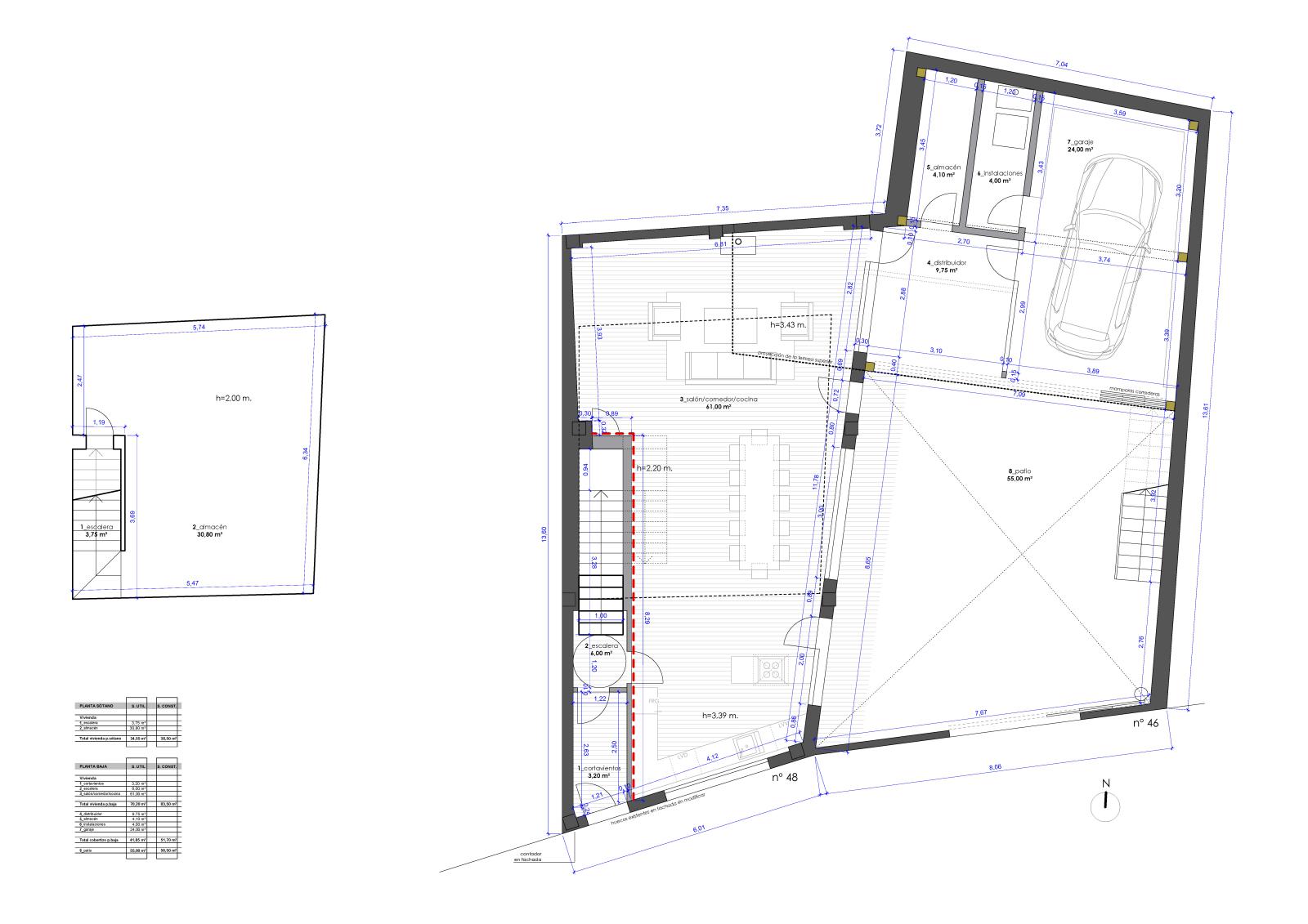
La intervención se desarrolla en dos fases; por un parte la reforma de la planta baja de la edificación y por otra la ejecución de un cobertizo en la parcela contigua.
La edificación tiene un uso y tipología típicos del municipio; la vivienda del dueño o encargado se sitúa en las plantas superiores mientras que en la planta baja el uso es comercial ya que se utilizaba antiguamente como tienda de alimentación, pescadería o carnicería. Esto da lugar a una tipología característica donde mediante una única entrada se llega a un hall desde el que parte la escalera privada de acceso a las plantas superiores de vivienda y la puerta de acceso al comercio. El actual propietario desea realizar un acondicionamiento completo del espacio de planta baja para poder tener un uso de vivienda unifamiliar vinculado a las plantas superiores pero aquí con connotaciones de “loft” lo más diáfano posible y volcado mediante grandes ventanales al patio que existe en el solar contiguo.
Para completar la intervención, se ejecuta un cobertizo en el interior de la parcela contigua que sirva para completar las exigencias básicas de funcionamiento y almacenamiento de la planta baja además de aquellas que se pudieran derivar del uso del espacio libre del patio. Para ello se distribuye una zona de garaje con espacio mínimo para un vehículo, sala de instalaciones, almacén y distribuidor para conectar con el espacio acondicionado en planta baja de la vivienda contigua.
- 175 m²
- 2014-2015
- Antigüedad, Palencia.








