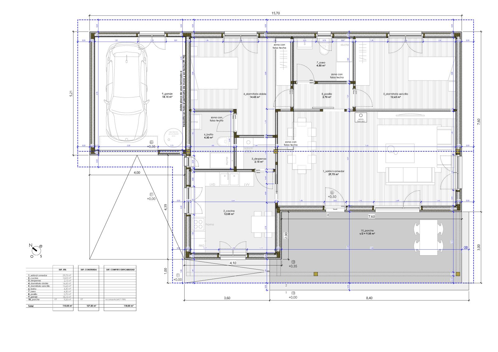
La esencia del proyecto consiste en aplicar soluciones modulares para conseguir una vivienda comprometida con las exigencias actuales: versátil, cómoda, sostenible y con un consumo energético casi nulo (ECCN). Consiste en una vivienda unifamiliar para uso de segunda residencia situada en la zona de expansión fuera del núcleo del municipio rural.
El programa del inmueble se compone de salón-comedor, cocina independiente con despensa, baño suite en el dormitorio doble, aseo de cortesía, dos dormitorios (uno doble y uno sencillo), un garaje y un amplio porche cubierto de acceso.
- 127 m²
- 2017-
- Villabáñez, Valladolid









