La vivienda se plantea como una edificación bajo el estándar passivhaus con un consumo energético casi nulo y esto condiciona en gran medida el diseño espacial, programático y formal.
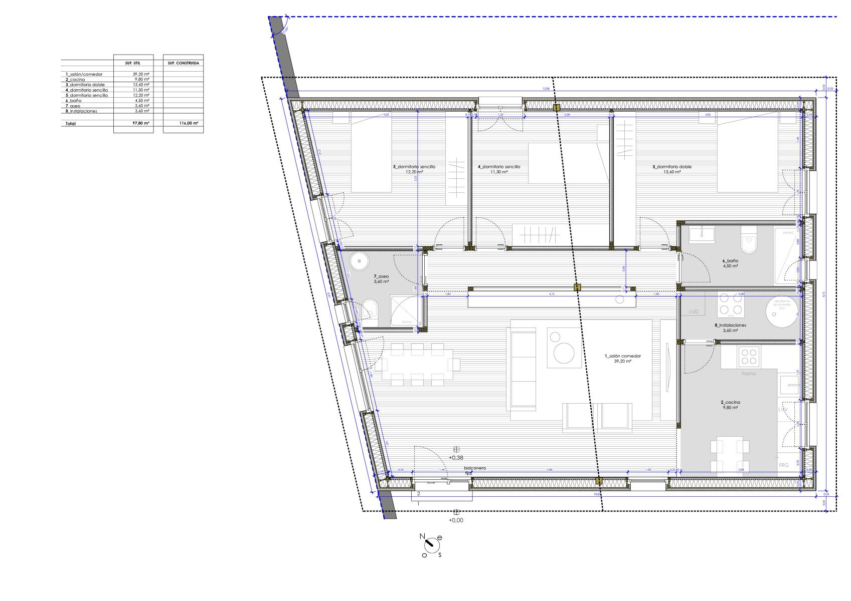
El programa del inmueble se desarrolla en una sola planta y en una única edificación. La vivienda se compone de salón-comedor, cocina abierta, baño con bañera, lavabo e inodoro, aseo con ducha, lavabo e inodoro y tres dormitorios (uno doble para la pareja y dos sencillos para los hijos).
- 116 m²
- 2017
- Campillo de Aranda, Burgos.







