La vivienda es respetuosa con el medio ambiente, sostenible y bioclimática, ejecutada con materiales reciclados y reciclables y utiliza las técnicas constructivas y tecnológicas más avanzadas.
La edificación posee un funcionamiento higrotérmico y un confort interior óptimos al seguir los conceptos que definen una passivhaus o edificio de consumo energético casi nulo. Para ello, se ha generado una envolvente higrotérmica con gran capacidad aislante y con una lámina de estanqueidad que además actúa de barrera ante las ondas electromagnéticas. Sin puentes térmicos o minimizando estos al máximo posible. Las carpinterías se sitúan en el plano exacto de la envolvente térmica y se cuida al máximo su colocación de cara a la estanqueidad. Se coloca un sistema de ventilación de doble flujo con recuperación de calor de hasta el 95% y tratamiento de la humedad del aire. La aerotermia se compone de una bomba de calor incorporada de alto rendimiento que extrae energía del propio aire del ambiente interior para el acs y para la climatización de la vivienda mediante el suelo radiante/refrescante incorporado.
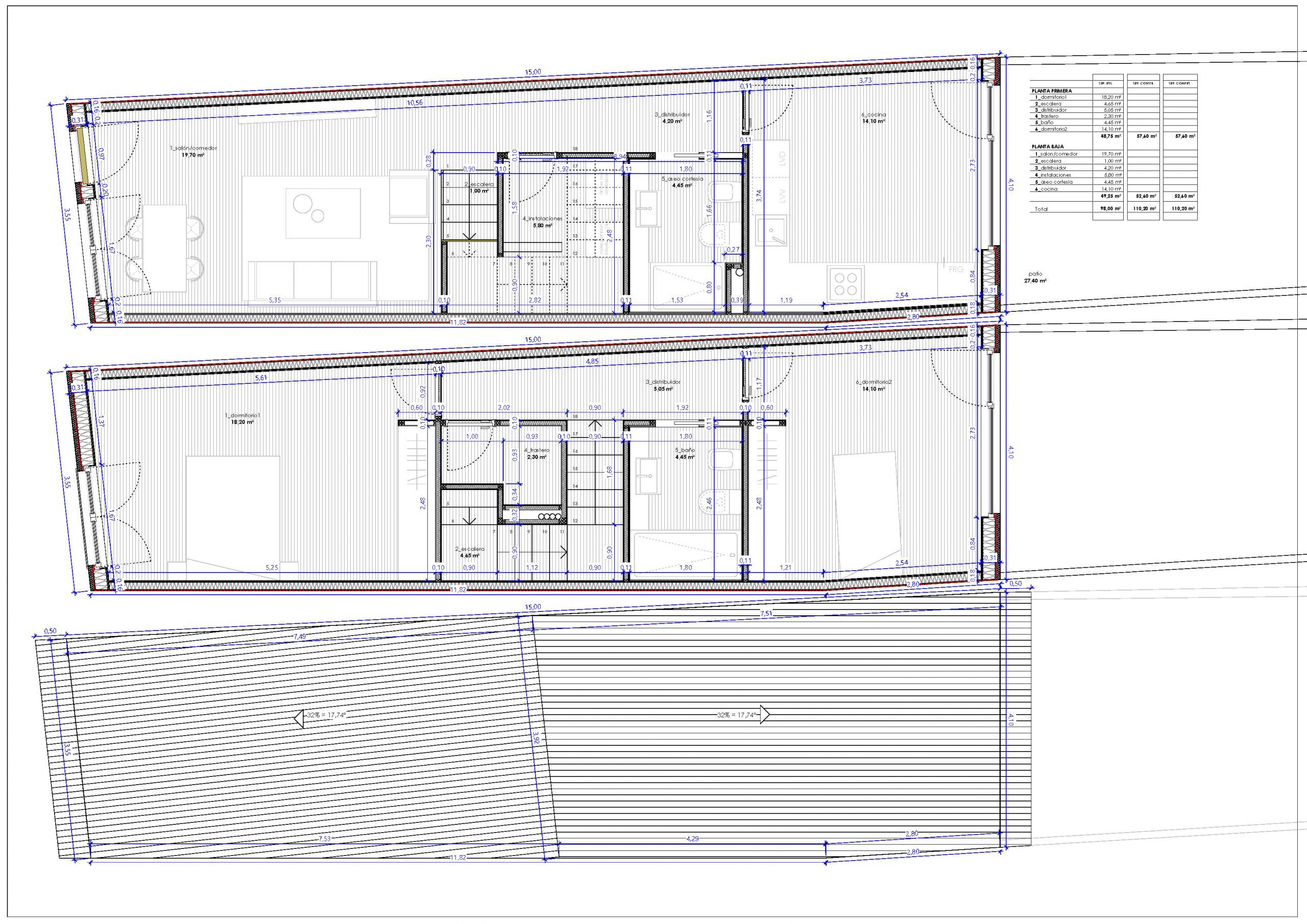
El mínimo frente de parcela condiciona en gran medida el diseño y disposición de los distintos espacios, buscando aperturas para las piezas habitables hacia la calle y el patio y situando las piezas húmedas o de almacenaje en una posición centrada. Además la tipología entre medianeras formando manzana cerrada obliga a plantear un frente de fachada a calle buscando la identificación tradicional con el entorno, mientras que las mayores aperturas se produce al interior de la parcela, de orientación sur y carácter privado.
- 110 m².
- 2020 –
- Carrión de los Condes, Palencia.







