La vivienda es respetuosa con el medio ambiente, sostenible y bioclimática, ejecutada con materiales reciclados y reciclables y utiliza las técnicas constructivas y tecnológicas más avanzadas.
La edificación posee un funcionamiento higrotérmico y un confort interior óptimos al seguir los conceptos que definen una passivhaus o edificio de consumo energético casi nulo. Para ello, se ha generado una envolvente higrotérmica con gran capacidad aislante y con una lámina de estanqueidad que además actúa de barrera ante las ondas electromagnéticas. Sin puentes térmicos o minimizando estos al máximo posible. Las carpinterías se sitúan en el plano exacto de la envolvente térmica y se cuida al máximo su colocación de cara a la estanqueidad. Se coloca un sistema de ventilación de doble flujo con recuperación de calor de hasta el 95% y tratamiento de la humedad del aire. La aerotermia se compone de una bomba de calor incorporada de alto rendimiento que extrae energía del propio aire del ambiente exterior para el acs y para la climatización de la vivienda mediante los paneles del techo radiante incorporados.
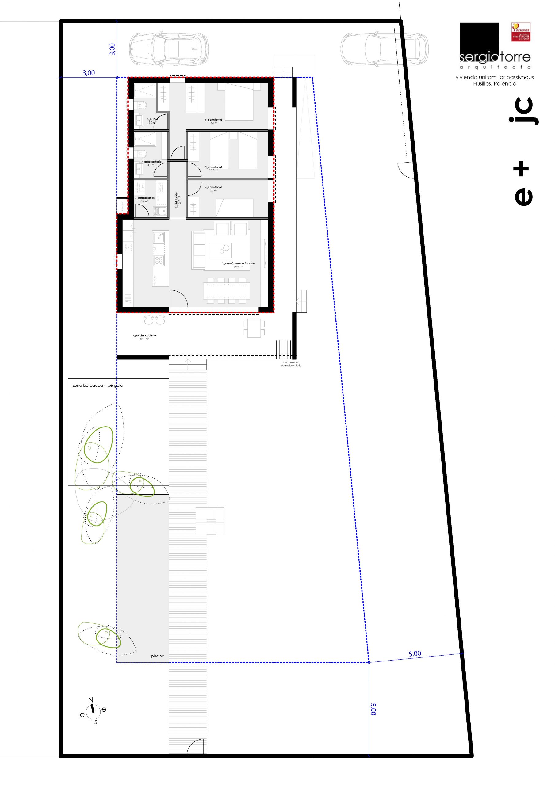
Su tipología aislada permite plantear las aperturas y sombreamientos según la orientación necesaria. Se accede a la vivienda mediante un porche perimetral que evita el sobrecalentamiento en periodo estival. Se disponen al sur y este las distintas estancias principales, salón/comedor y dormitorios, que se abren al jardín con sus aperturas de suelo a techo. En la orientación opuesta se disponen los cuartos húmedos separados mediante una crujía de recorridos y almacenamiento.
- 150 m².
- 2020 –
- Husillos, Palencia.








