La vivienda se ubica en una zona perimetral del casco urbano de Autilla del Pino. Se plantea como una edificación de muy altas prestaciones diseñada bajo el estándar passivhaus.
Posee un funcionamiento higrotérmico y un confort interior óptimos al seguir los conceptos que define el estándar passivhaus. Es respetuosa con el medio ambiente, sostenible y bioclimática, ejecutada con materiales reciclados y reciclables y utiliza las técnicas constructivas y tecnológicas más avanzadas.
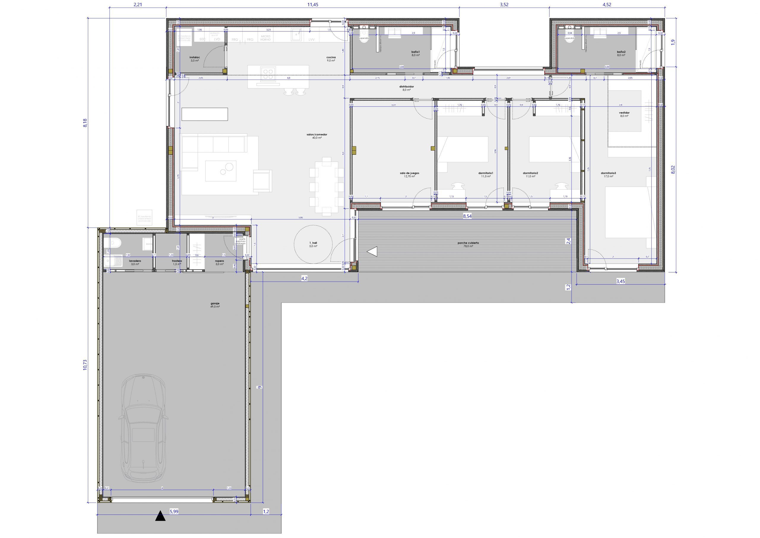
Su tipología aislada permite plantear las aperturas y sombreamientos según la orientación necesaria. Se accede a la vivienda de manera frontal mediante un porche directo que evita el sobrecalentamiento al suroeste. Se disponen en esta fachada las distintas estancias de día, todas ellas volcadas al jardín; el hall de acceso, el amplio salón/comedor/cocina y los dormitorios. En la orientación opuesta se disponen las zonas de servicio e instalaciones. Las múltiples relaciones dentro/fuera permiten una percepción continua del espacio exterior, volcando la vivienda al espacio libre del jardín y cerrándose a las orientaciones oportunas.
- 180 m²
- 2022-2023
- Autilla del Pino, Palencia.








