La vivienda está ubicada en una zona de nuevo crecimiento y se plantea como un edificio con el máximo confort interior, una óptima salubridad y un consumo energético casi nulo bajo el estándar passivhaus plus certificado.
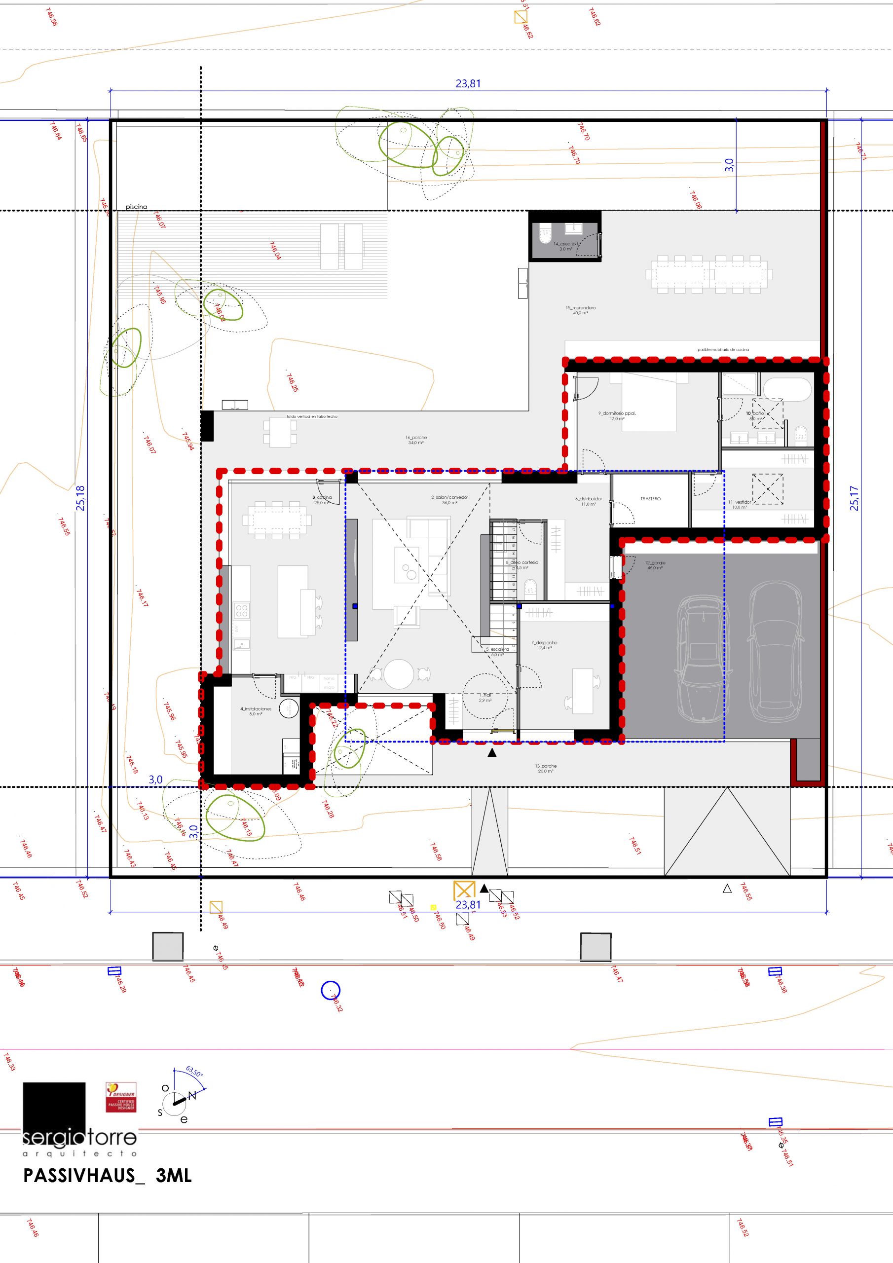
Cerrada al espacio público y abierta al máximo a la intimidad privada interior, la vivienda pasiva vuelca sus fachadas de manera coherente y sin ornamentos. Diversos vacíos espaciales generan entre sí una volumetría pura y funcional en forma de L, acondicionada al entorno, a sus vistas y orientaciones.
Posee un funcionamiento higrotérmico y un confort interior óptimos al seguir los conceptos que define el estándar passivhaus. Es respetuosa con el medio ambiente, sostenible y bioclimática. Está ejecutada con materiales reciclados y reciclables y utiliza las técnicas constructivas y tecnológicas más avanzadas.
- 300 m².
- 2023-
- Villalobón, Palencia.











