Vivienda unifamiliar de alto nivel que pretende convertirse en la primera edificación passivhaus certificada del municipio.
El diseño primario de la vivienda se formaliza mediante un elemento elevado con un gran peso visual. Este plano engloba y protege todos los volúmenes acristalados funcionales y sus vacíos negativos. Así, se pretende crear el «trampantojo» o ilusionismo arquitectónico, el elemento masivo que conforma la cubierta plana «levita».
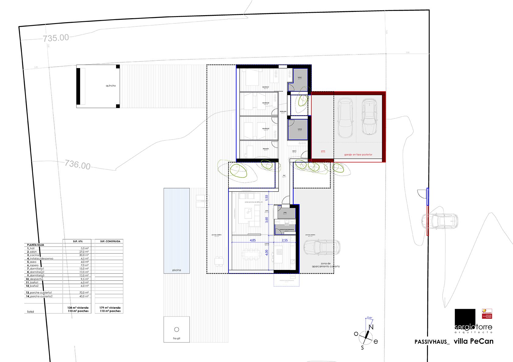
La composición funcional de la vivienda se materializa en la agrupación de volúmenes y vacíos internos y externos. Esto provoca una gran riqueza interior; el vacío de acceso que atraviesa por completo la edificación tensionando las visuales o los espacios más amplios que se suceden a otros más acotados, variando su escala y proporción.
La Passivhaus posee el máximo confort interior, una óptima salubridad y un consumo energético casi nulo. Es respetuosa con el medio ambiente, sostenible y bioclimática, ejecutada con materiales reciclados y reciclables y utiliza las técnicas constructivas y tecnológicas más avanzadas.
La edificación posee un funcionamiento higrotérmico y un confort interior óptimos al seguir los conceptos que definen una passivhaus o edificio de consumo energético casi nulo. Para ello, se ha generado una envolvente higrotérmica con gran capacidad aislante y una lámina de estanqueidad. Sin puentes térmicos o minimizando estos al máximo posible. Las carpinterías se sitúan en el plano exacto de la envolvente térmica y se cuida al máximo su colocación de cara a la estanqueidad. Se coloca un sistema de ventilación de doble flujo con recuperación de calor de hasta el 95% y tratamiento de la humedad del aire. La aerotermia se compone de una bomba de calor incorporada de alto rendimiento que extrae energía del propio aire del ambiente interior para el acs y para la climatización de la vivienda mediante conductos.
- 250 m².
- 2024
- Renedo de Esgueva, Valladolid.















