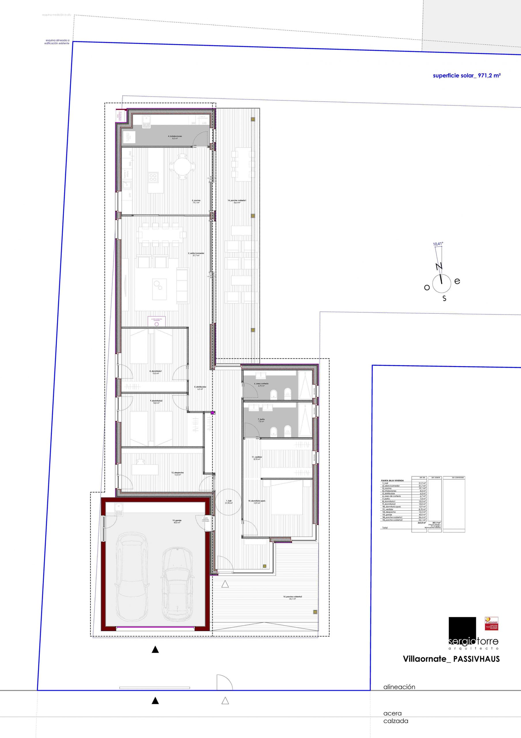
Vivienda de tipología y estética tradicional adaptada a una parcela lineal con desarrollo de gran fondo. Se ha prestado atención a su disposición dentro de la parcela y su relación directa con el entorno próximo. Así, su esquema en forma lineal genera un frente estrecho a la calle principal a la que se asoma de manera muy contenida y funcional, mientras el desarrollo se produce hacia el espacio privado de la parcela al este.
La vivienda se plantea como un edificio PassivhausPlus con el máximo confort interior, una óptima salubridad y un consumo energético casi nulo. Construida con madera certificada, es respetuosa con el medio ambiente, sostenible y bioclimática, ejecutada con materiales reciclados y reciclables y utiliza las técnicas constructivas y tecnológicas más avanzadas.
La edificación posee un funcionamiento higrotérmico y un confort interior óptimos al seguir los conceptos que definen una passivhaus o edificio de consumo energético casi nulo. Para ello, se ha generado una envolvente higrotérmica con gran capacidad aislante y con una lámina de estanqueidad que además actúa de barrera ante las ondas electromagnéticas. Sin puentes térmicos, las carpinterías se sitúan en el plano exacto de la envolvente térmica y se cuida al máximo su colocación de cara a la estanqueidad. Se coloca un sistema de ventilación de doble flujo con recuperación de calor de hasta el 95% y tratamiento de la humedad del aire. La aerotermia se compone de una bomba de calor incorporada de alto rendimiento que extrae energía del propio aire del ambiente exterior para el acs y para la climatización de la vivienda mediante el suelo radiante/refrescante incorporado.
- 300 m².
- 2021 – 2022
- Villaornate, León.













