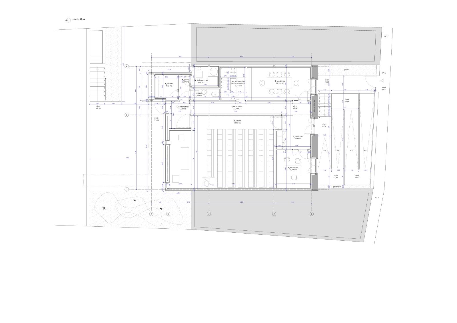
El conjunto da respuesta a las necesidades de la diócesis de poder disponer de un recinto para el culto en época invernal junto con sus salas de gestión y a su vez distribuir una vivienda para el párroco y sus ayudantes con acceso privado e independiente.
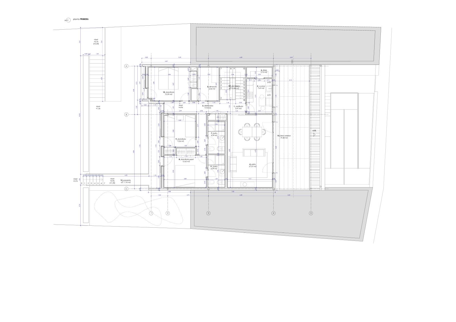
Así, el programa se desarrolla de la siguiente forma: En la planta baja se dispone un hall de acceso, despacho, sala de reuniones, capilla, sacristía, aseo de cortesía y sala de instalaciones. La escalera da acceso a la planta superior donde se distribuyen tres dormitorios dobles, salón-comedor, trastero, cocina con despensa y dos baños completos.
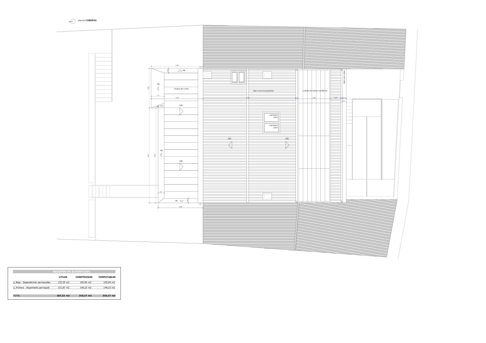
- 310 m²
- 2009-
- Cebreros, Ávila.












