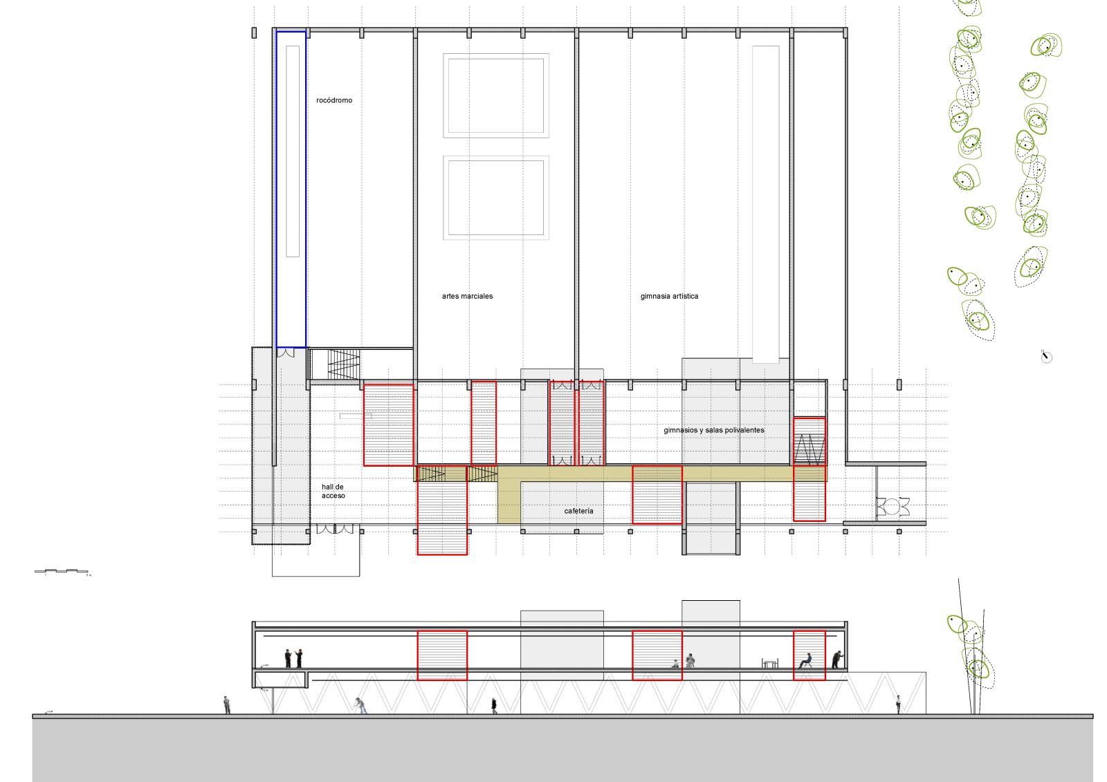
Conjunto deportivo para gimnasia artística, artes marciales y escalada. La distribución responde a un esquema en forma de espina de pez donde una «calle interior» que engloba todos los servicios secundarios y recorridos da acceso a las distintas salas deportivas.
Formalmente se pretende enfatizar el telón de fondo existente, la cordillera montañosa, mediante un volumen pesado y facetado. A su vez, la levedad en sus apoyos evocan el esfuerzo físico que requiere la práctica deportiva.
- 2200 m²
- 2008-
- Moralzarzal, Madrid.








