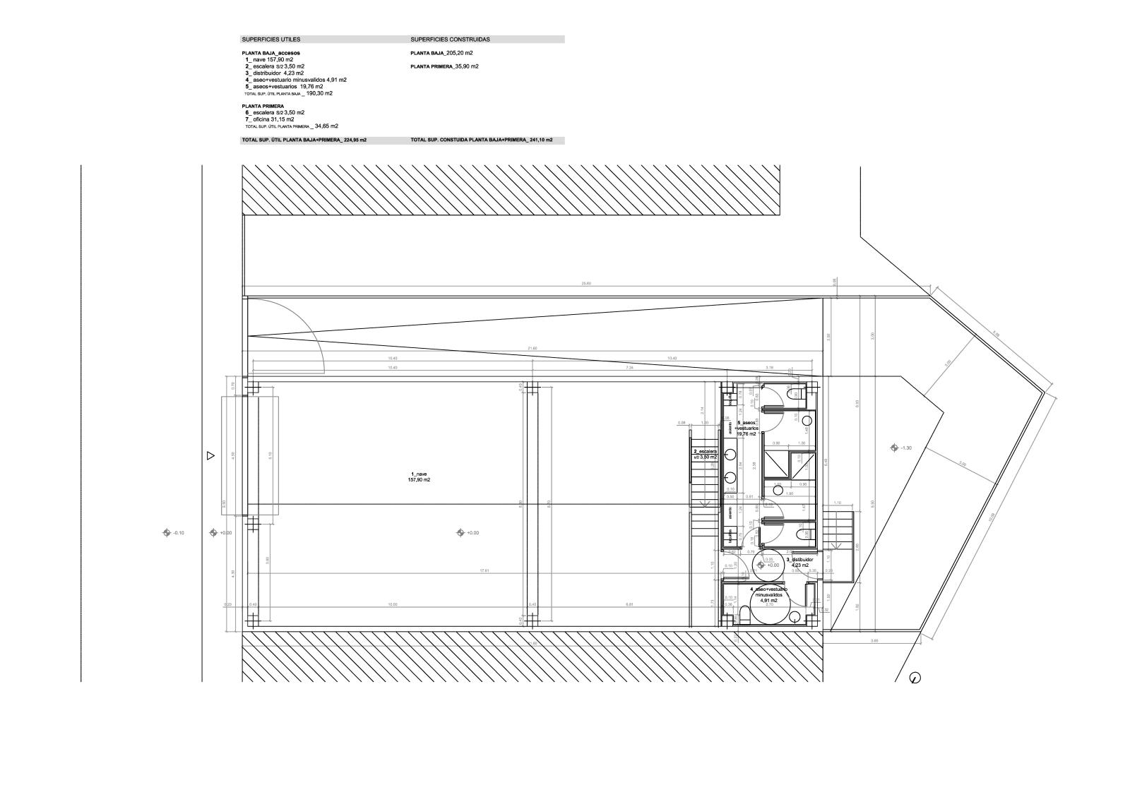
Nave de almacenamiento 1. Cebreros (Ávila)