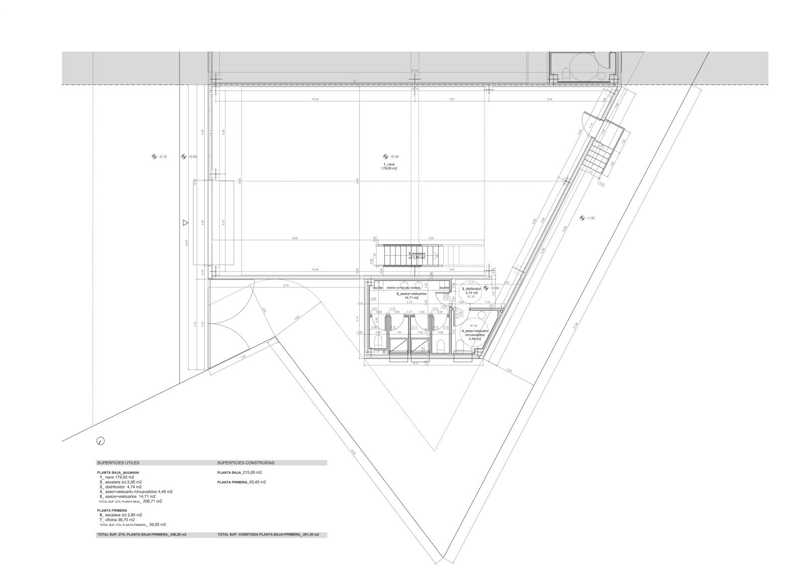
Nave industrial para uso de almacenaje de vehículos pesados. Incorpora zona de oficinas y vestuarios.