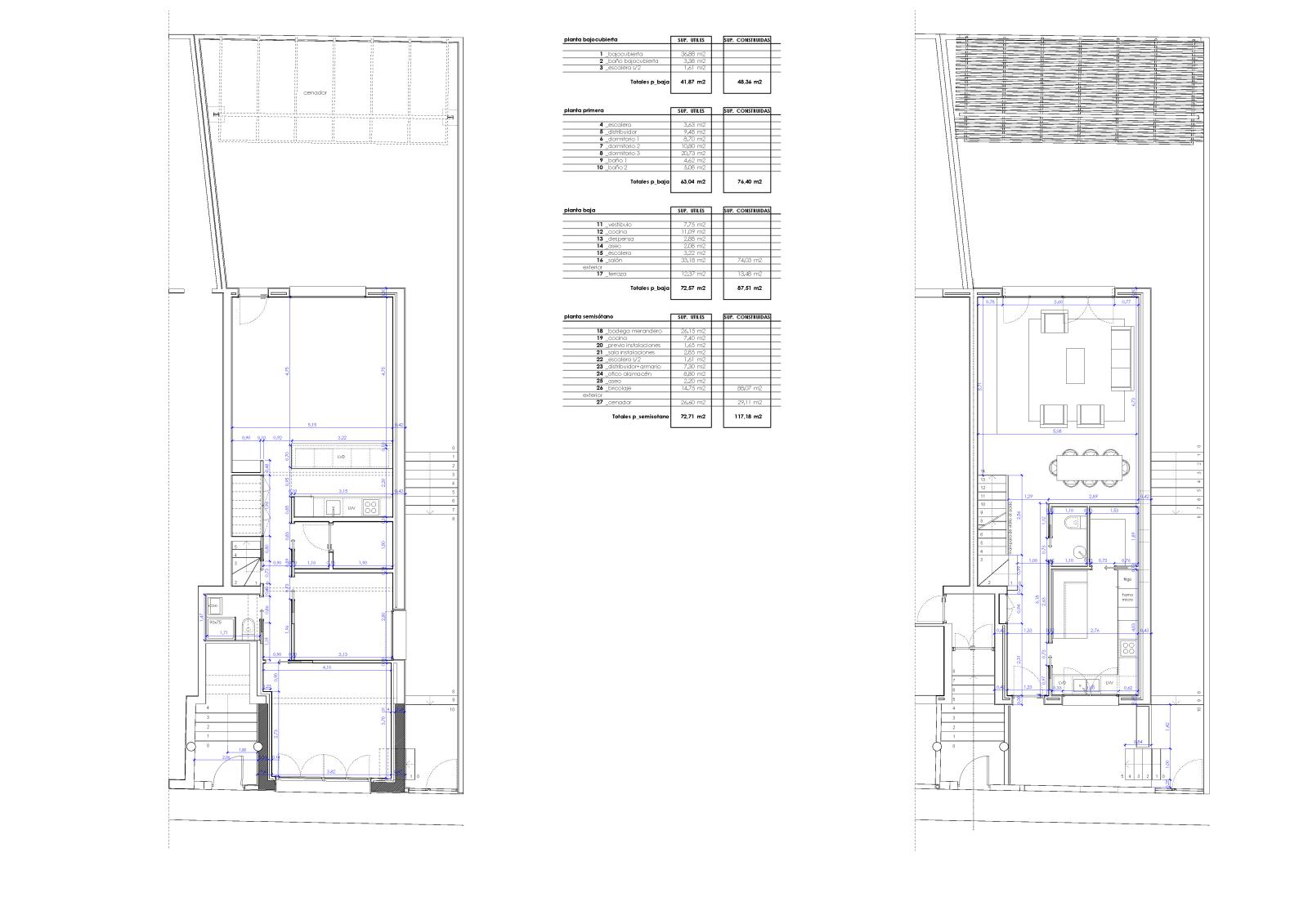
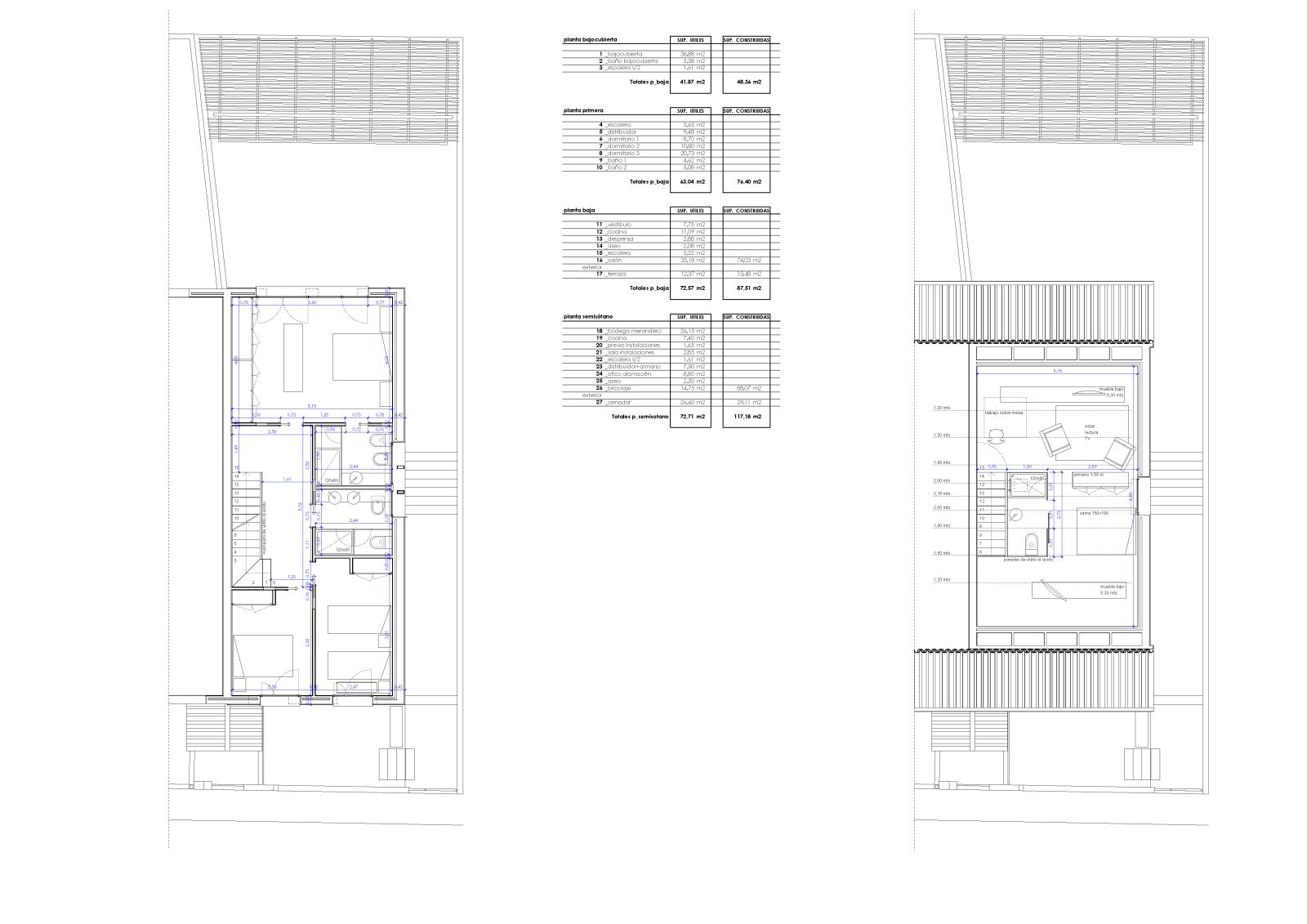
La intervención consiste en la reforma de una vivienda de los años 80 para su actualización, apertura de espacios y autosuficiencia eléctrica.