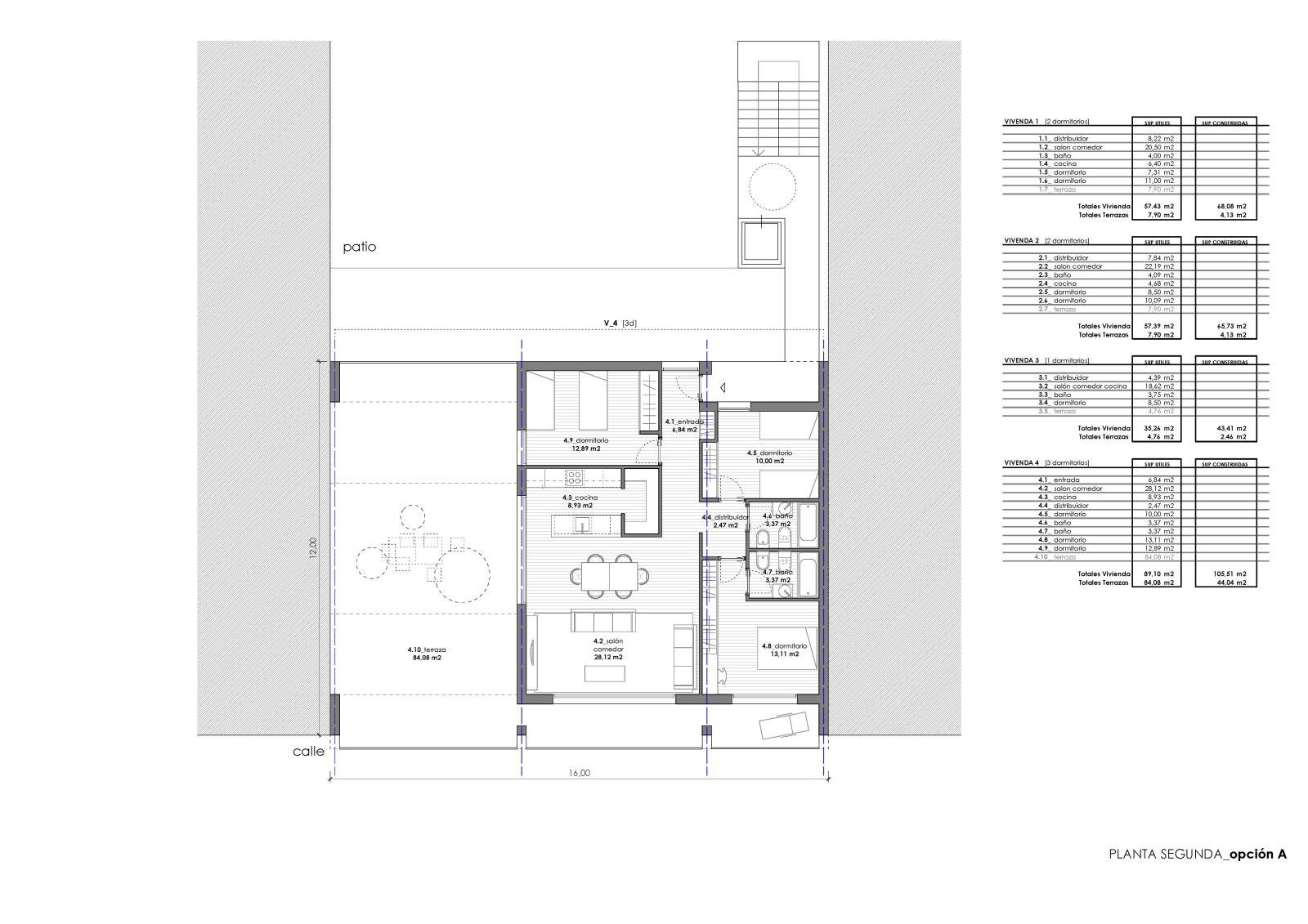
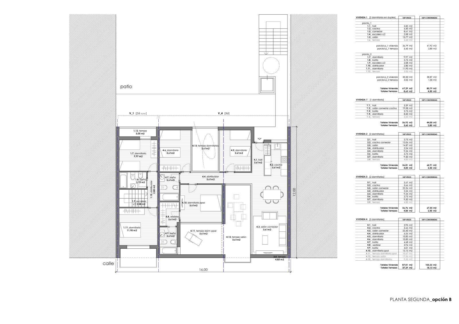
Edificio de viviendas. Ciudad del Este (Paraguay)