La vivienda se sitúa en la urbanización Mirador de la Vega, una zona de ampliación del núcleo.
La edificación incorpora muchos de los principios del estándar passivhaus; es respetuosa con el medio ambiente, sostenible, bioclimática y con un consumo energético casi nulo (ECCN).
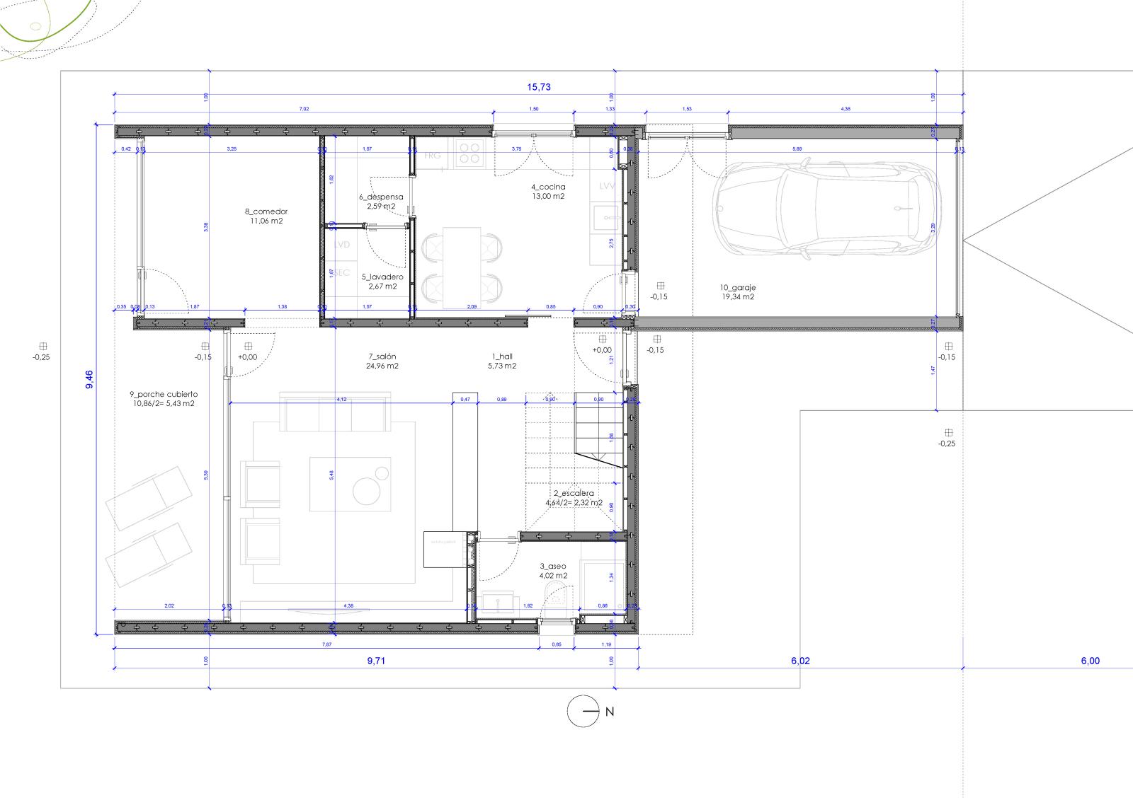
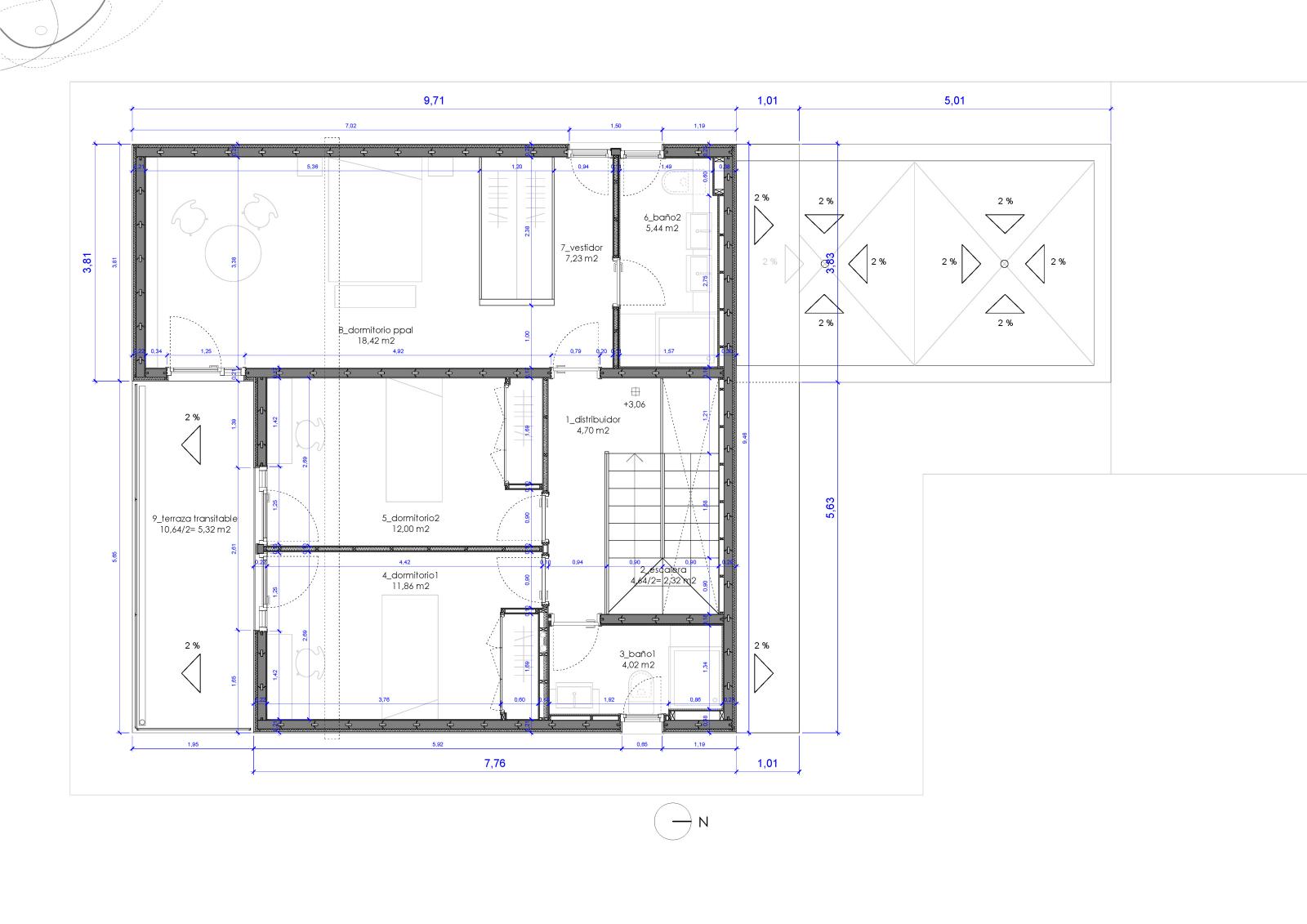
El programa de la vivienda se desarrolla de la siguiente forma: En la planta baja se dispone el hall de acceso en doble altura, cocina con despensa y lavadero, salón con comedor independiente, aseo y garaje. En planta primera se sitúa el dormitorio principal con baño y vestidor, dos dormitorios dobles con terraza y baño completo.
- 187 m²
- 2010-2012
- Carrión de los Condes (Palencia).















