La vivienda se sitúa entre medianeras en el centro urbano del municipio, formando esquina de la manzana.
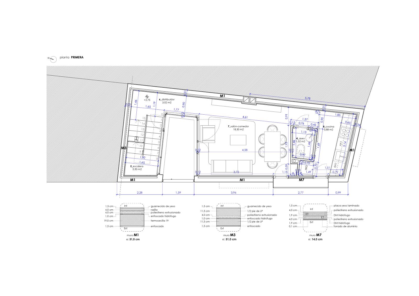
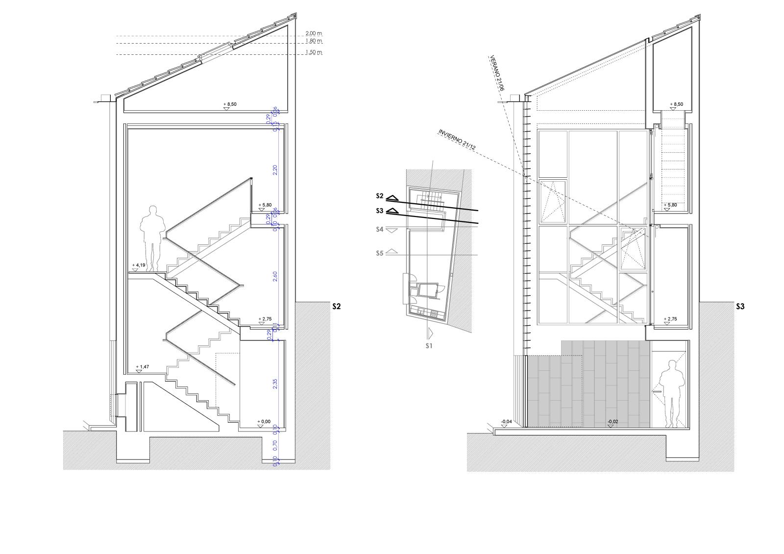
El programa de la vivienda se desarrolla de la siguiente forma: En la planta baja se dispone el garaje y el patio de acceso que atraviesa en altura toda la vivienda y sirve como elemento de ventilación e iluminación. La escalera da acceso a la plantas superiores. La planta primera es la zona noble de la vivienda y en ella se distribuye el salón-comedor, la cocina y el aseo de cortesía. La segunda planta dispone de dos dormitorios y baño completo. En el espacio bajocubierta están las instalaciones.
- 125 m²
- 2009-2011
- Cebreros, Ávila.



















