La edificación consiste en una vivienda unifamiliar aislada situada en una zona de expansión del núcleo.
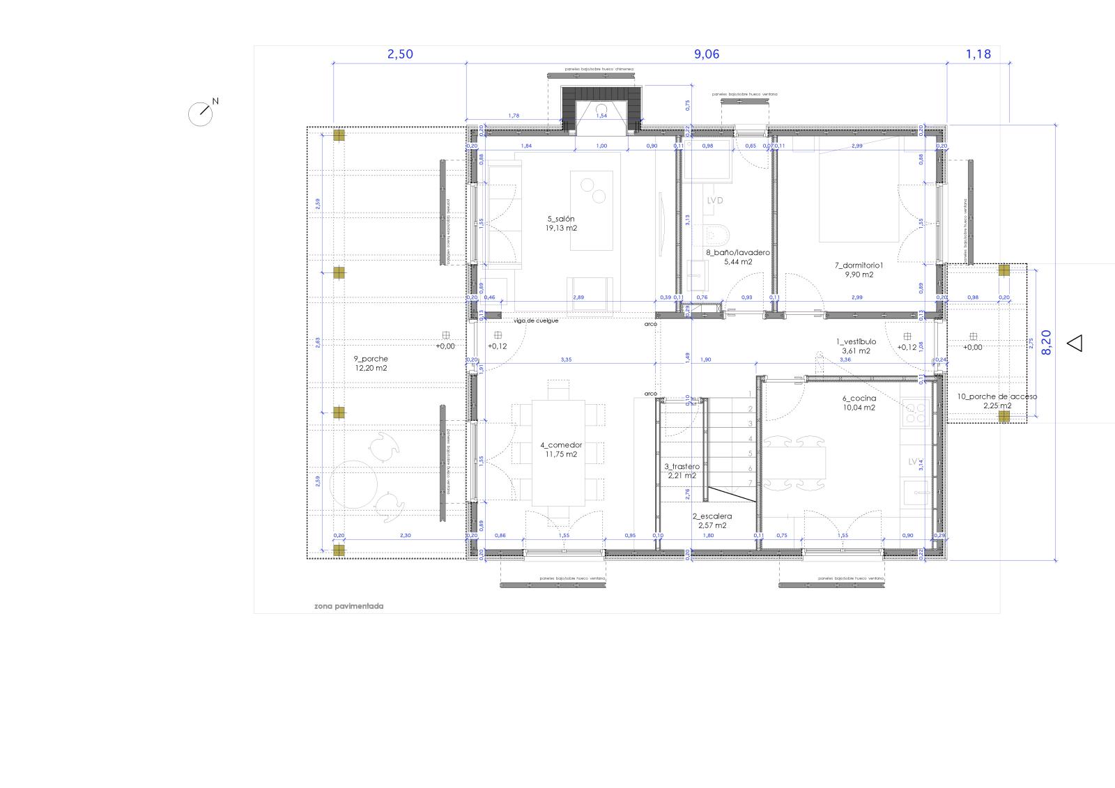
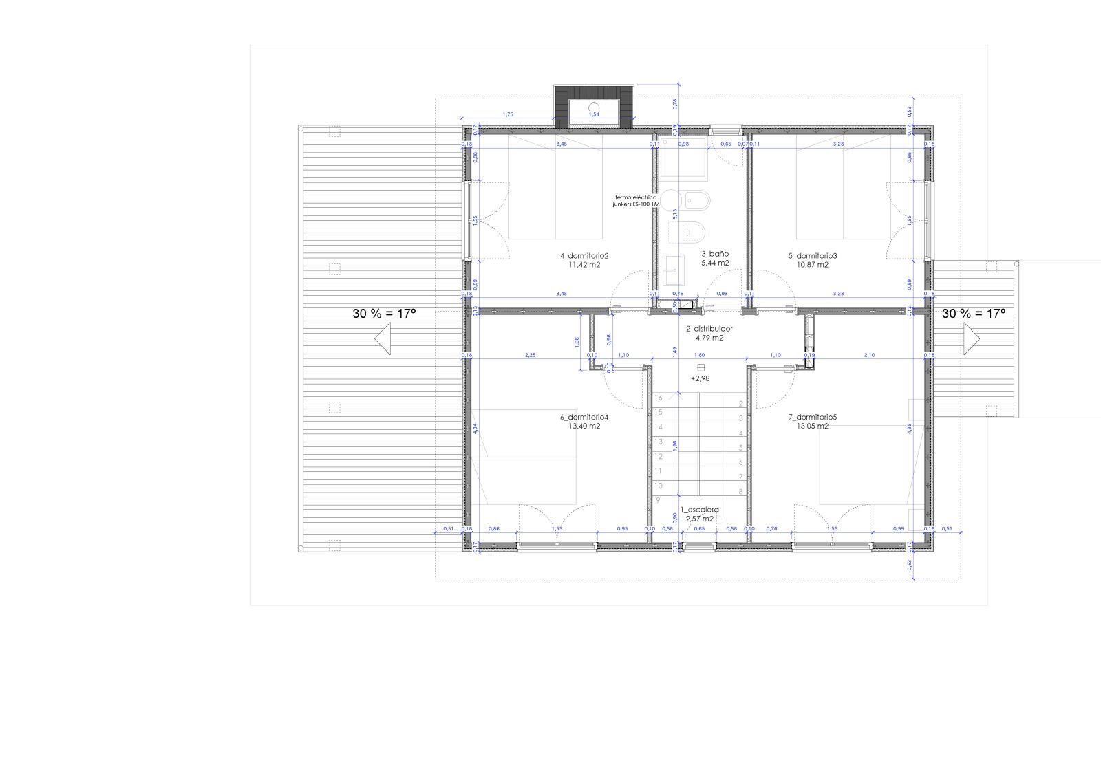
El programa de la vivienda se desarrolla para una familia con varios hijos y personas mayores. Se buscan espacios dinámicos y luminosos, sobre todo en las zonas de uso de día que conforman la planta baja. Conforme nos vamos elevando se gana en privacidad. En la planta baja se disponen un vestíbulo de acceso con el arranque de la escalera que comunica con la planta superior y que interconecta a su vez la cocina con el salón, el baño de cortesía y un dormitorio. En la planta primera se distribuyen los espacios más privados como son los cuatro dormitorios dobles. Un baño común completa el programa funcional de esta planta primera.
- 161 m²
- 2011-2012
- Cueto, Sancedo (León).












