La edificación consiste en una vivienda unifamiliar entre medianeras situada en una zona elevada del casco histórico del municipio y con un consumo energético casi nulo (ECCN).
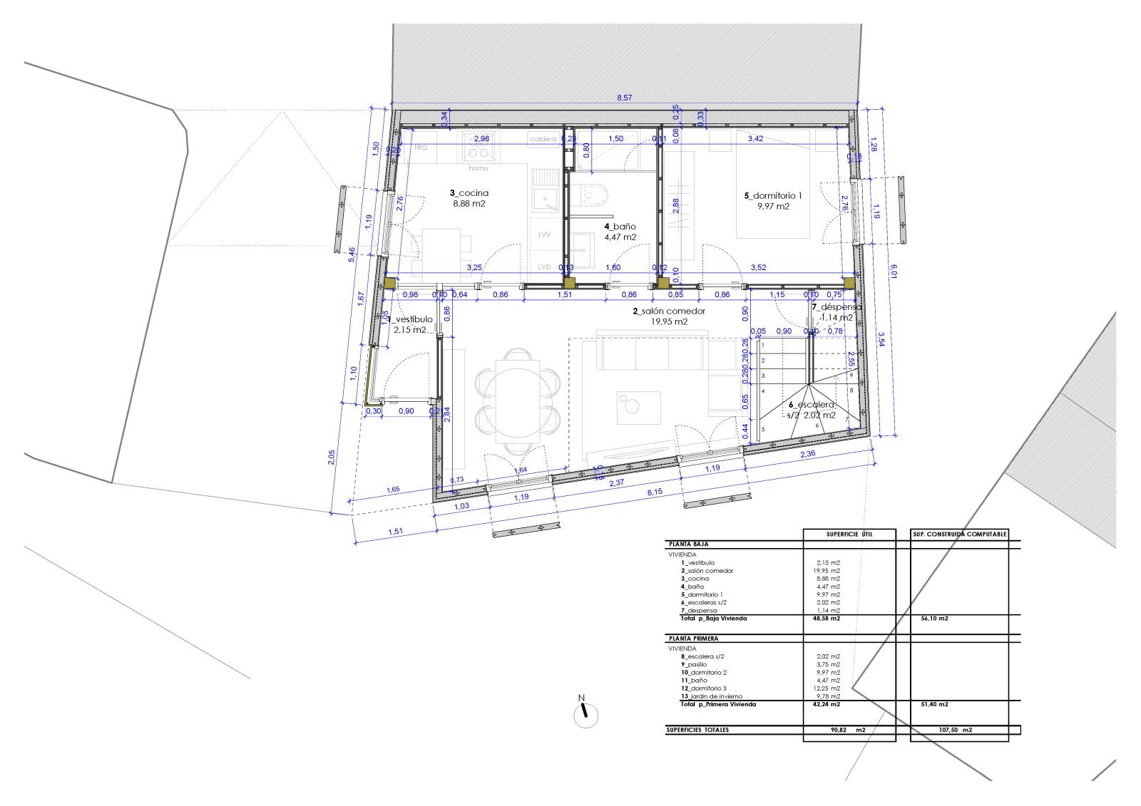
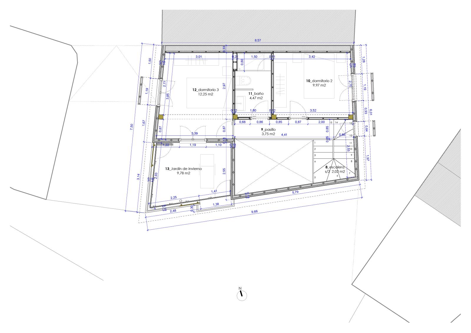
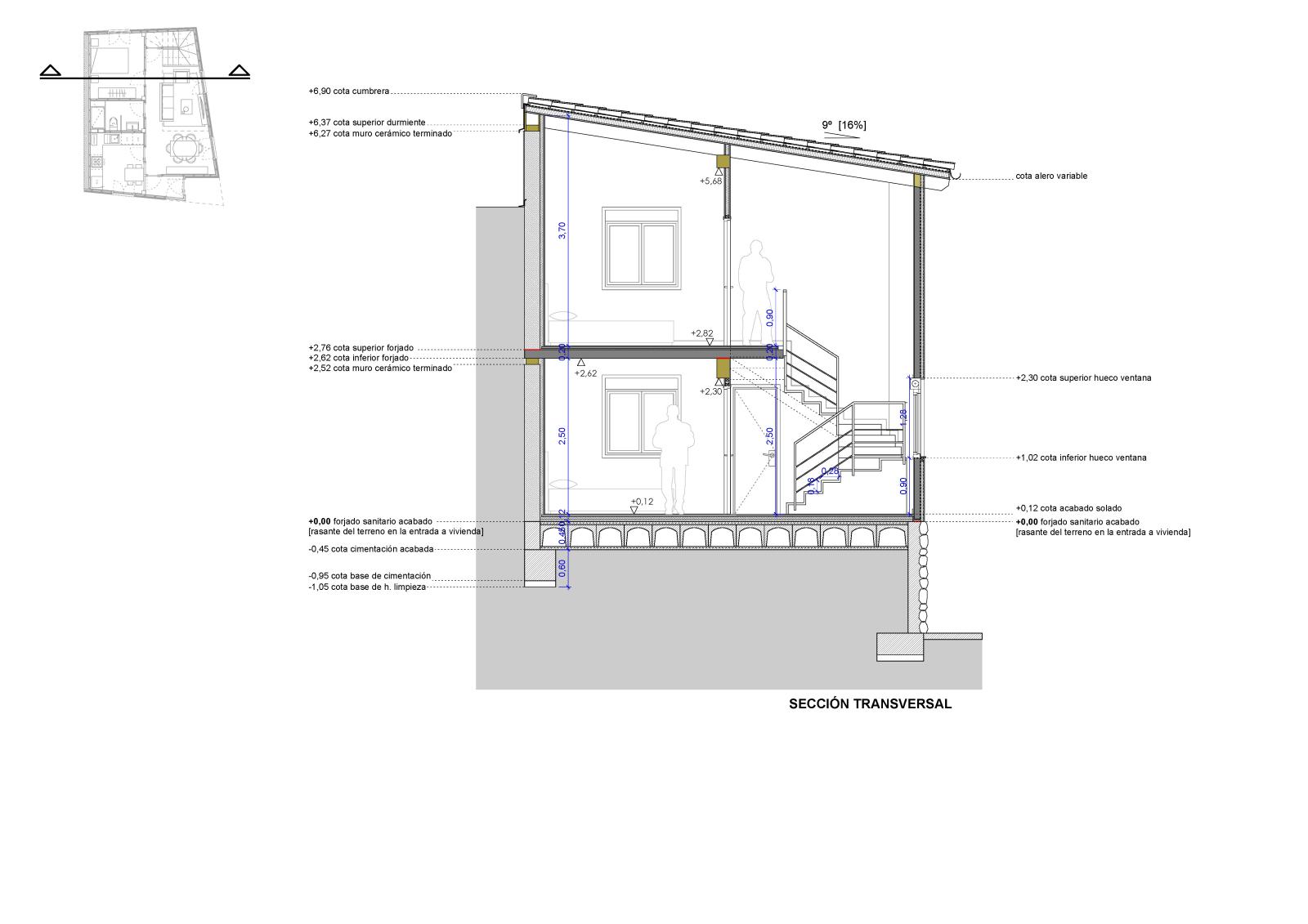
El programa de la vivienda se desarrolla de la siguiente forma: En la planta baja se dispone un hall que da paso al espacio abierto del salón-comedor que posee doble altura amplificando el espacio. La escalera se encuentra igualmente abierta a este espacio y vuelca sobre él, dejando por debajo un local de despensa. Una cocina, un baño completo y un dormitorio doble completan el programa de la planta baja. En la planta primera, la escalera que arranca en la planta baja desembarca en un pasillo abierto a la planta baja a modo de pasarela que comunica con 2 dormitorios dobles y un baño completo. Un jardín de invierno vinculado al dormitorio principal completa el programa.
- 107 m²
- 2011-2016
- Dueñas, Palencia.














