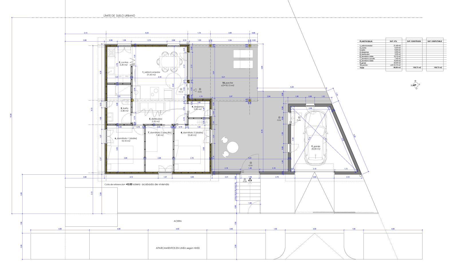
De estilo rústico, el programa del inmueble se desarrolla en una sola planta y en dos edificaciones independientes (vivienda y garaje) unificadas volumétricamente mediante el muro de fachada a calle. La vivienda se compone de salón-comedor, cocina, baño, despensa y tres dormitorios (dos dobles y uno sencillo). La vivienda vuelca hacia el interior de la parcela dotándose de porche de acceso en la fachada Sur del salón-comedor. El garaje es un único espacio.
- 110 m²
- 2012
- Fresno del Rio, Palencia.








