La vivienda se sitúa en la urbanización Las Calas de Guisando, un entorno privilegado junto al embalse de San Juan. Todo el planteamiento persigue la apertura de la edificación hacia el embalse, generando un filtro en la fachada a calle que privatiza los espacios.
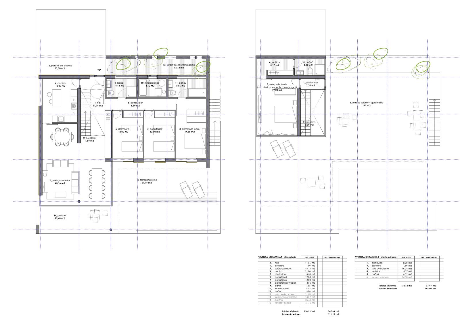
El programa de la vivienda se desarrolla de la siguiente forma: En la planta baja se dispone el hall de acceso en doble altura, cocina, salón-comedor, tres dormitorios, dos baños y sala de instalaciones. Una amplia terraza con piscina y porche completan las zonas exteriores. En planta primera se sitúa el dormitorio principal con baño y vestidor, y la terraza solarium.
- 185 m²
- 2010-
- Las Calas, Cebreros, Ávila.












