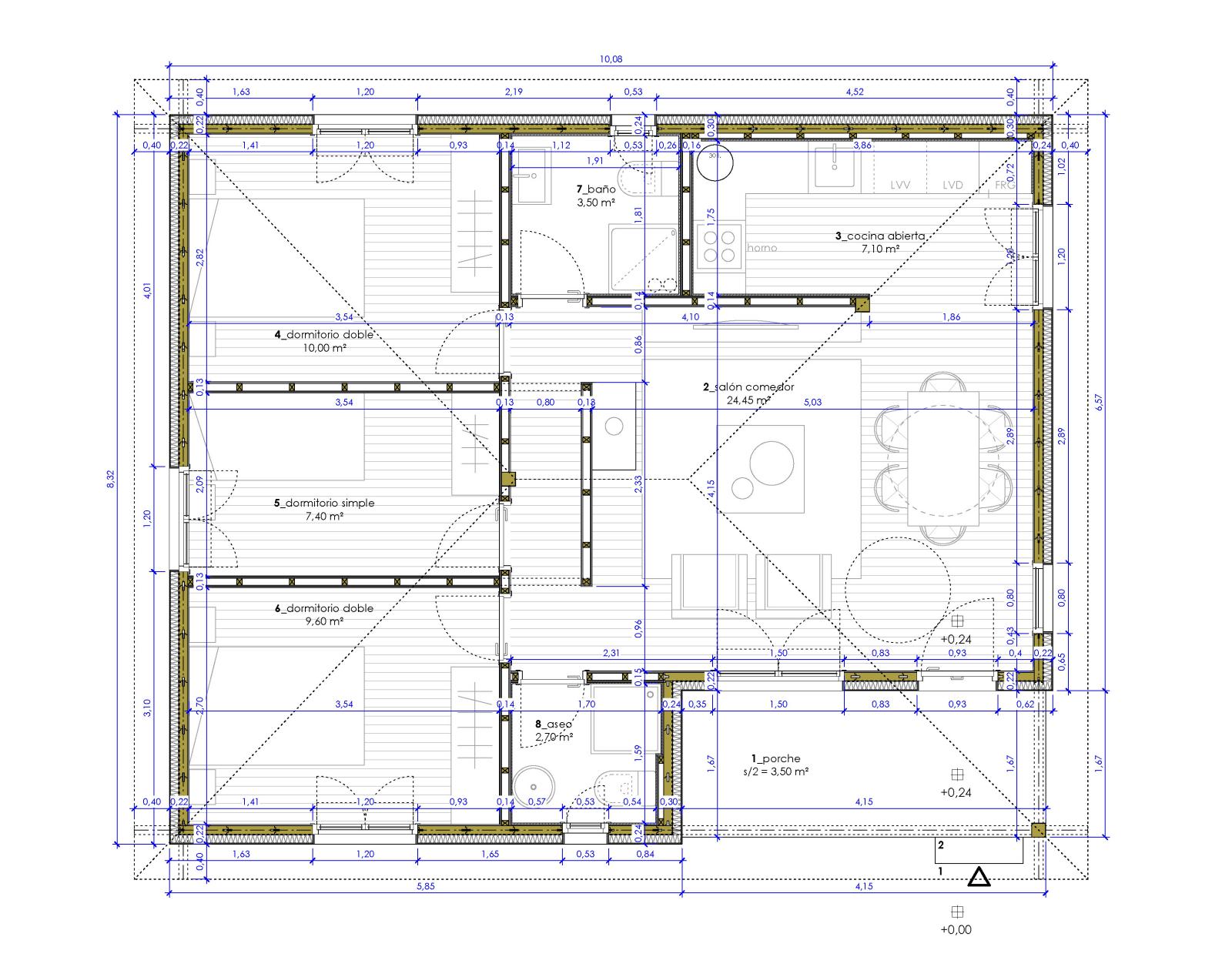
Vivienda unifamiliar aislada de estilo rústico situada en una zona de ampliación del núcleo urbano. Es una edificación con un consumo energético casi nulo.
El programa del inmueble se desarrolla en una sola planta y en una única edificación. La vivienda se compone de salón-comedor, cocina abierta, baño, aseo de cortesía y tres dormitorios (dos dobles y uno sencillo). La vivienda posee un porche de acceso en la esquina suroeste del salón-comedor.
- 80 m²
- 2013-2014
- Monzón de Campos (Palencia).











