Vivienda unifamiliar aislada situada en una zona periférica de ampliación del núcleo rural.
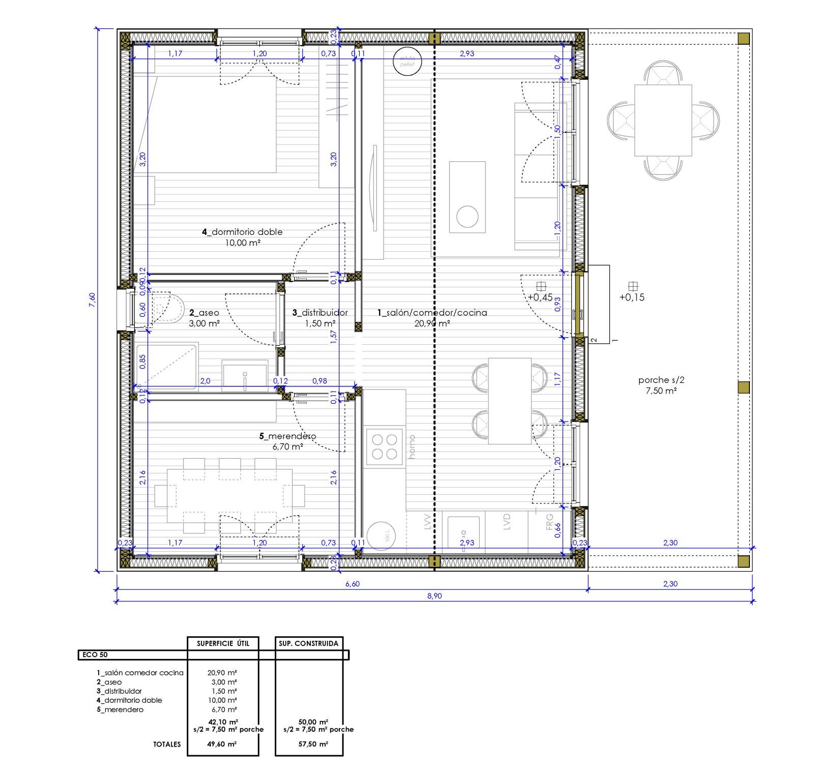
De estilo rústico, se desarrolla en una sola planta y se compone de salón/comedor con cocina abierta, merendero, dormitorio doble y baño. Un amplio porche exterior de acceso en el lateral sur completa el programa.
- 58 m²
- 2015
- Monzón de Campos, Palencia.








