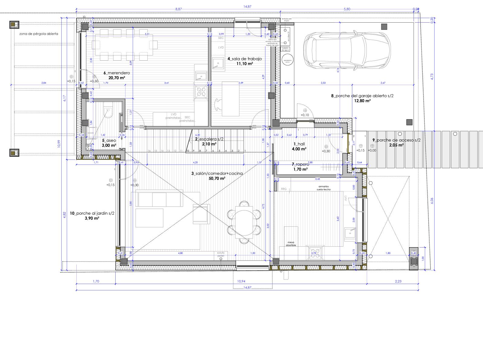
El programa de la vivienda se desarrolla para una pareja joven y funcional. Buscan espacios dinámicos y luminosos, sobre todo en las zonas de uso de día donde los espacios se abren completamente al jardín privado. Se gana en privacidad conforme nos vamos elevando. En la zona de acceso de la planta baja se disponen un garaje abierto y cubierto con 2 plazas de aparcamiento y un hall con función de almacenaje que da paso al espacio diáfano del salón/cocina/comedor. La planta baja se completa con un merendero abierto al jardín, un despacho y un aseo de cortesía. En la planta primera se distribuyen los espacios más privados como son el dormitorio sencillo y el dormitorio principal con vestidor. Una sala de juegos que vuelca al salón y un baño común completan el programa funcional.
La edificación posee un funcionamiento higrotérmico y un confort interior óptimos al seguir los conceptos que definen una passivhaus o edificio de consumo energético casi nulo. Para ello, se ha generado una envolvente higrotérmica con gran capacidad aislante y con una lámina de estanqueidad que genera una hermeticidad casi total y evita la pérdida energética por ventilación no controlada. Sin puentes térmicos o minimizando estos al máximo posible. Las carpinterías se sitúan en el plano exacto de la envolvente térmica y se cuida al máximo su colocación de cara a la
estanqueidad. Se ha colocado un sistema de ventilación de doble flujo con recuperación de calor de hasta el 95% y refrescamiento nocturno por bypass. A esta red de ventilación se le ha añadido una batería de agua caliente para que calefacte el aire impulsado a las distintas salas. Esta batería se conecta al sistema de aerotermia instalado. La aerotermia se compone de un depósito de ACS con una bomba de calor incorporada de alto rendimiento que extrae energía del propio aire exterior.
- 225 m²
- 2013-2014
- Carrión de los Condes (Palencia).
















