La vivienda tiene el reconocimiento de ser la primera edificación passivhaus de la capital palentina.
La edificación posee un funcionamiento higrotérmico y un confort interior óptimos al seguir los conceptos que definen una passivhaus o edificio de consumo energético casi nulo. Para ello, se ha generado una envolvente higrotérmica con gran capacidad aislante y con una lámina de estanqueidad que además actúa de barrera ante las ondas electromagnéticas. Sin puentes térmicos o minimizando estos al máximo posible. Las carpinterías se sitúan en el plano exacto de la envolvente térmica y se cuida al máximo su colocación de cara a la estanqueidad. Se coloca un sistema de ventilación de doble flujo con recuperación de calor de hasta el 95% y refrescamiento nocturno por bypass. A esta red de ventilación se le ha añadido una batería de agua caliente para que calefacte el aire impulsado a las distintas salas. Esta batería se conecta al sistema de aerotermia instalado. La aerotermia se compone de un depósito de ACS con una bomba de calor incorporada de alto rendimiento que extrae energía del propio aire del ambiente interior.
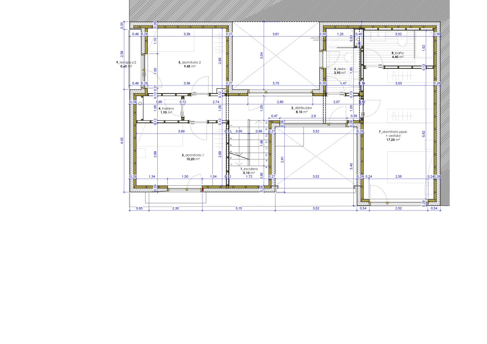
La edificación consiste en una vivienda unifamiliar entre medianeras situada en una zona de ampliación de la ciudad. El programa de la vivienda se desarrolla de la siguiente forma: En la planta baja se dispone la zona de día con un hall de acceso que vincula la zona más noble de la vivienda con las zonas de usos secundarios y por otra parte relaciona ambos patios. Este elemento que organiza espacios y recorridos da paso a un lado al salón y a la cocina/comedor que se vuelcan al jardín. Al lado opuesto del hall de acceso se sitúa el aseo de cortesía, el garaje para un vehículo y la sala de instalaciones. La escalera situada en una posición centrada en la vivienda actúa de núcleo vertical de comunicación y da paso a la primera planta donde se sitúa la zona de noche con tres dormitorios dobles, un trastero y dos baños (uno tipo suite dentro del dormitorio principal). La planta bajocubierta, está formada por un espacio diáfano a modo de despacho, zona de almacenaje y un distribuidor que da acceso. Los dos vacíos que atraviesan la vivienda en toda su altura definen las relaciones espaciales generando distintas privacidades, visuales y ámbitos formales.
- 177 m²
- 2012-2015
- Palencia.










