Vivienda unifamiliar aislada que incorpora múltiples elementos que posibilitan el funcionamiento bioclimático de la vivienda: la orientación óptima, las ventilaciones naturales cruzadas, el patio interior como regulador higrotérmico, el porche que evita el sobrecalentamiento de la vivienda debido a la radiación directa en verano pero que permite ganancias energéticas en invierno, el forjado sanitario, la continuidad del aislamiento, el captador solar en cubierta para a.c.s, la caldera de biomasa, la recuperación de las aguas pluviales para su reutilización o la masiva utilización de materiales reciclados o reciclables son algunas características bioclimáticas y/o sostenibles implementadas.
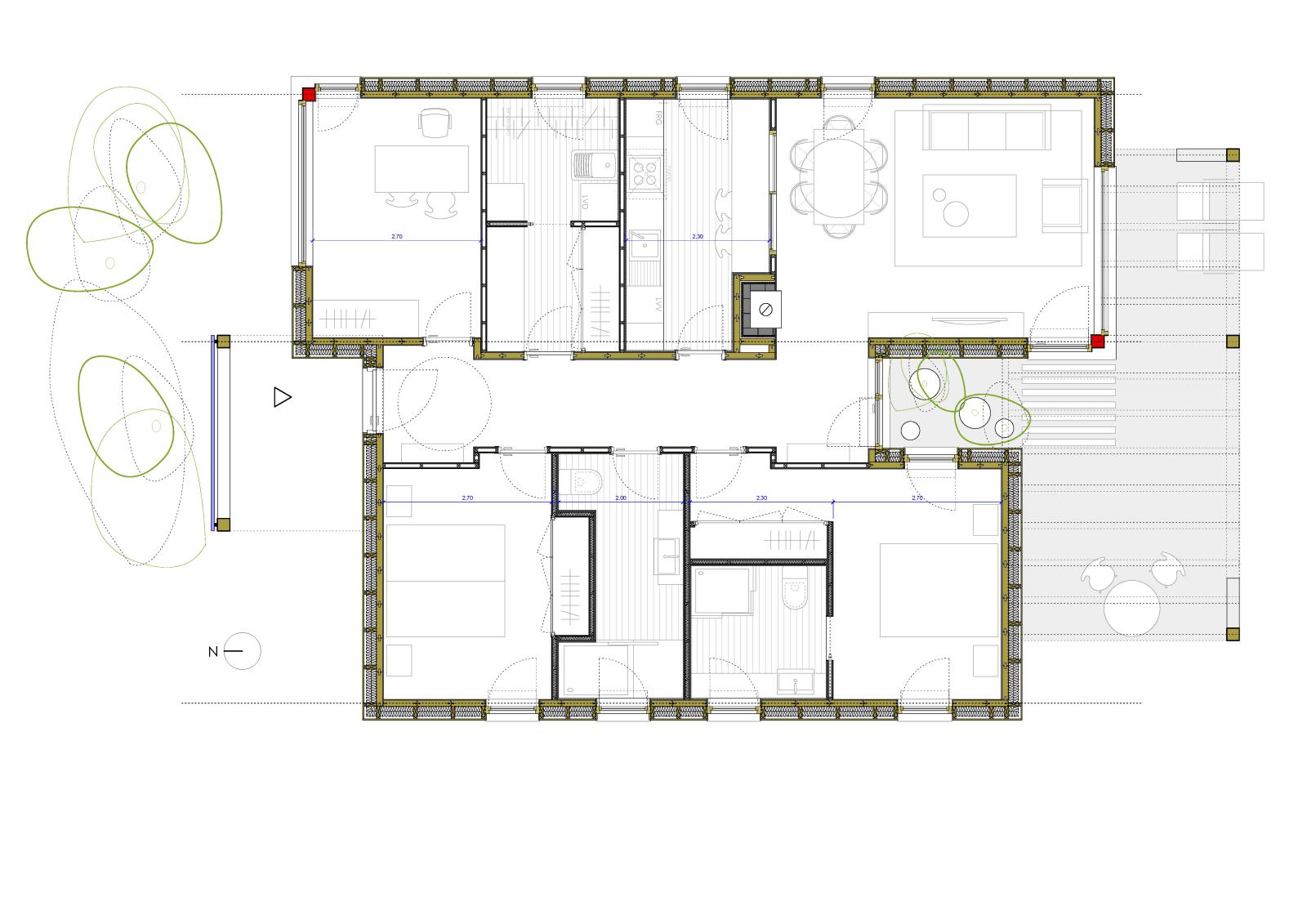
Consta de un amplio salón/comedor, cocina completa con zona de desayuno, dos dormitorios dobles (uno de ellos tipo suite con vestidor y baño incorporados), un despacho, aseo de cortesía, trastero, lavadero y hall de acceso. Además dispone de un patio ajardinado interior con funcionamiento bioclimático y una amplia pérgola exterior como extensión del salón.
- 118 m²
- 2012-
- Pozuelo de Alarcón (Madrid).






