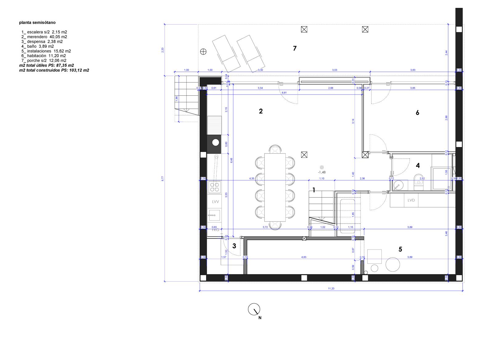
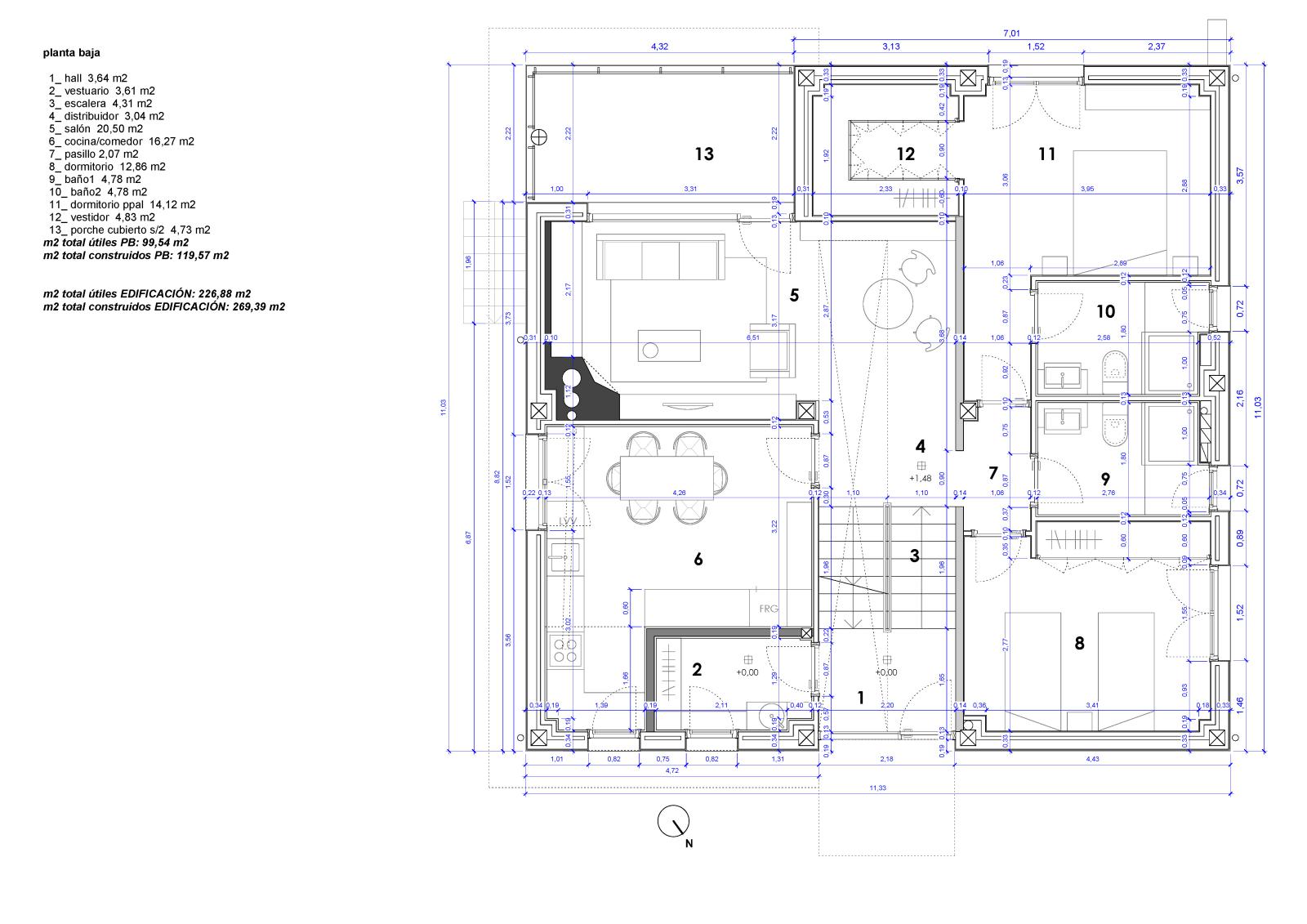
Casa J. Tordesillas (Valladolid)