La edificación consiste en una vivienda unifamiliar entre medianeras situada en el casco histórico del municipio.
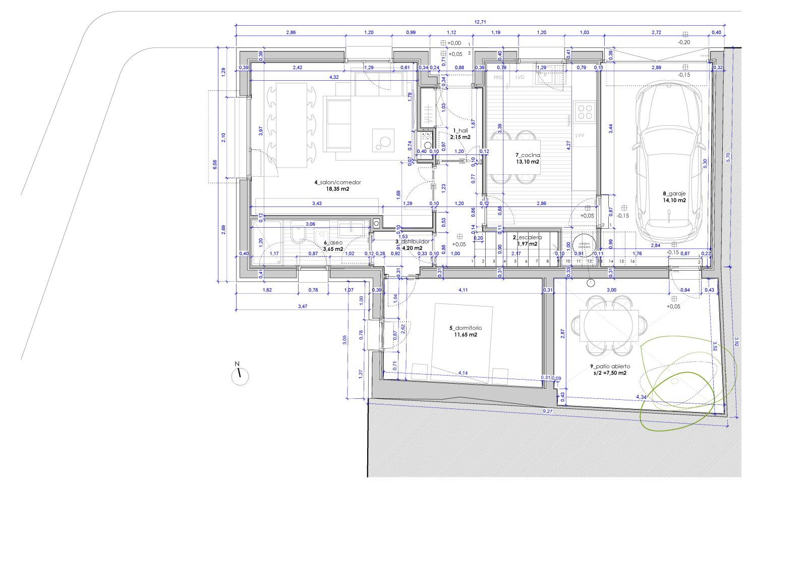
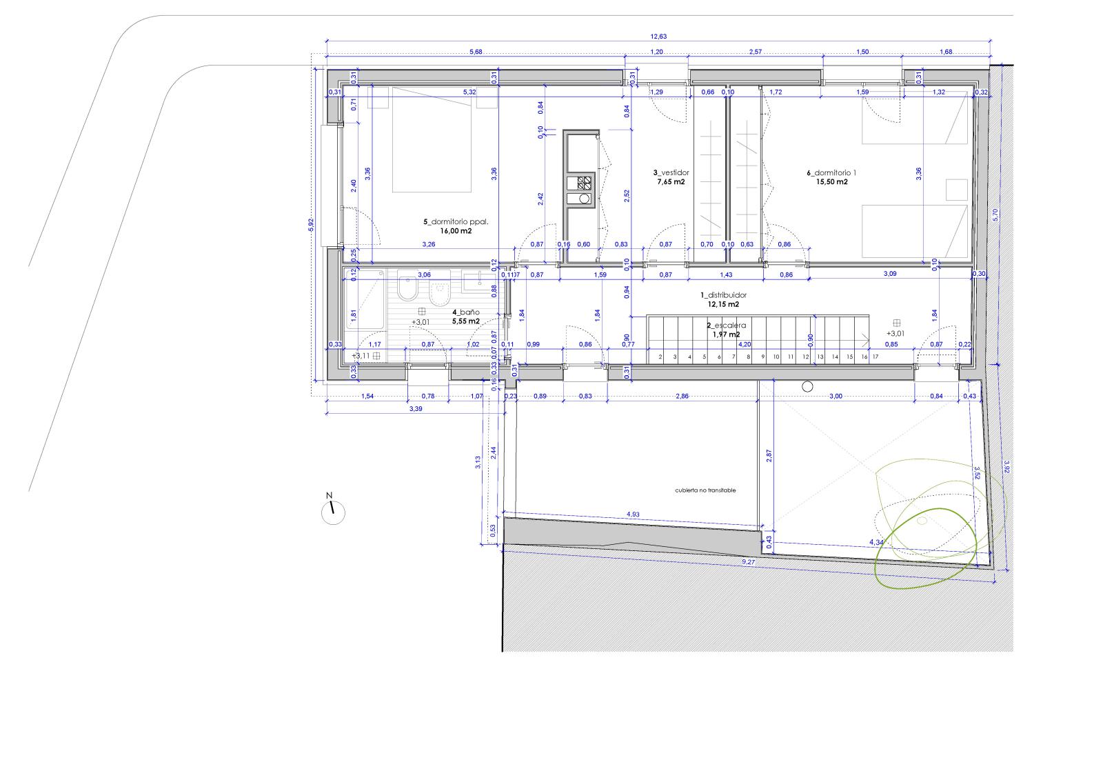
En la planta baja se dispone un dormitorio y el salón/comedor que abren hacia la plaza, cocina y aseo completo, todo ello articulado mediante un distribuidor al que se le incorpora un cortavientos en la zona de entrada y desde el cual parte la escalera hacia la planta superior. El garaje para 1 coche y el patio abierto en el fondo de la parcela completan la planta baja. En la planta primera, se proyectan dos amplios dormitorios más, un vestidor para el dormitorio principal y un baño completo. El distribuidor que organiza estas dependencias discurre en paralelo al desarrollo de la escalera de un solo tramo recto. La terraza es transitable y puede utilizarse como espacio de esparcimiento exterior vinculado al patio.
- 141 m²
- 2011-2014
- Villamuriel de Cerrato, Palencia.














