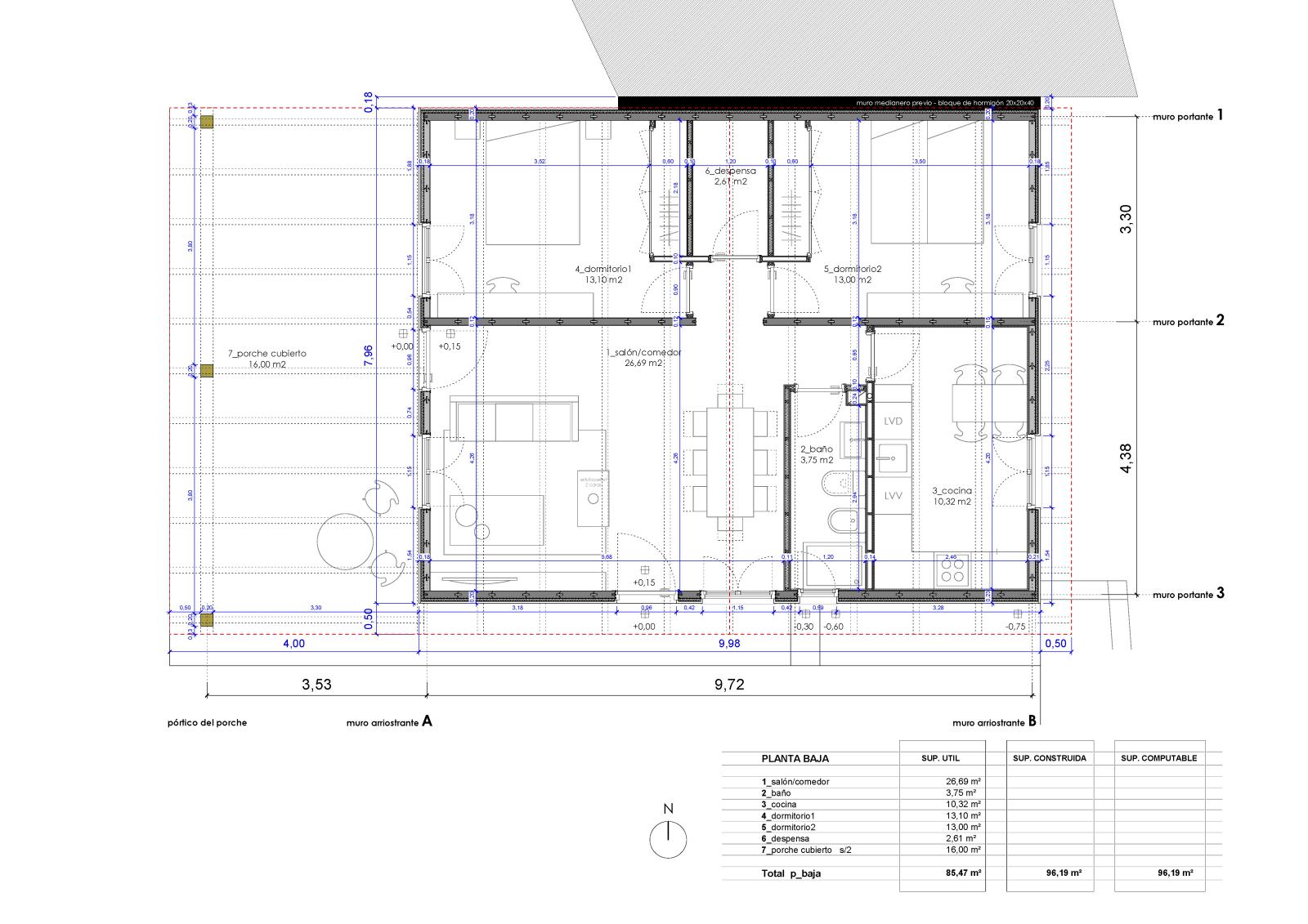
La edificación consiste en una vivienda unifamiliar entre medianeras situada en el casco antiguo del municipio.
El programa lo forman un amplio salón-comedor, cocina, despensa, baño completo y dos dormitorios dobles. El porche exterior cubierto al oeste completa la distribución.
- 96 m²
- 2010-2011
- Villanueva de Abajo (Palencia).







