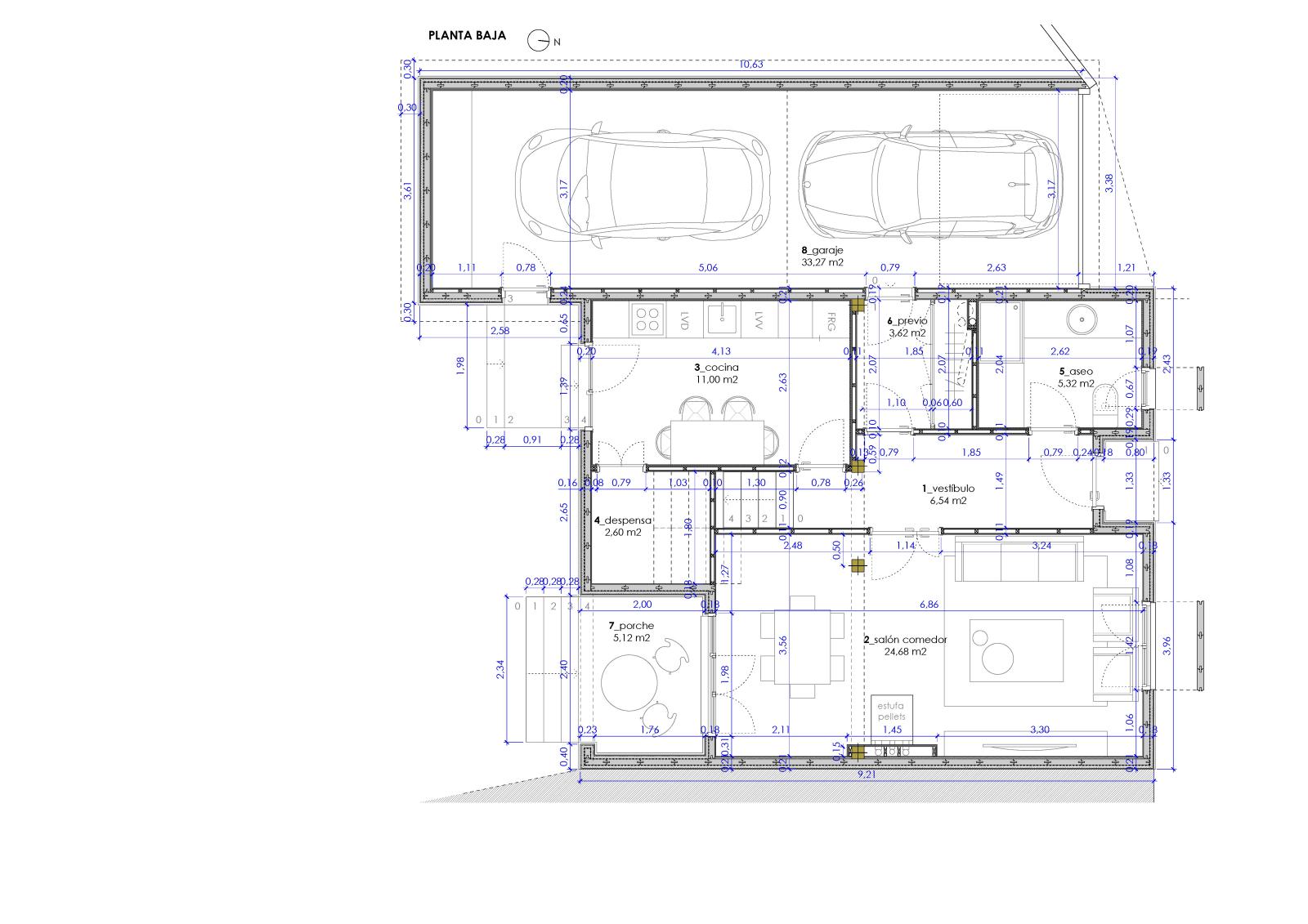
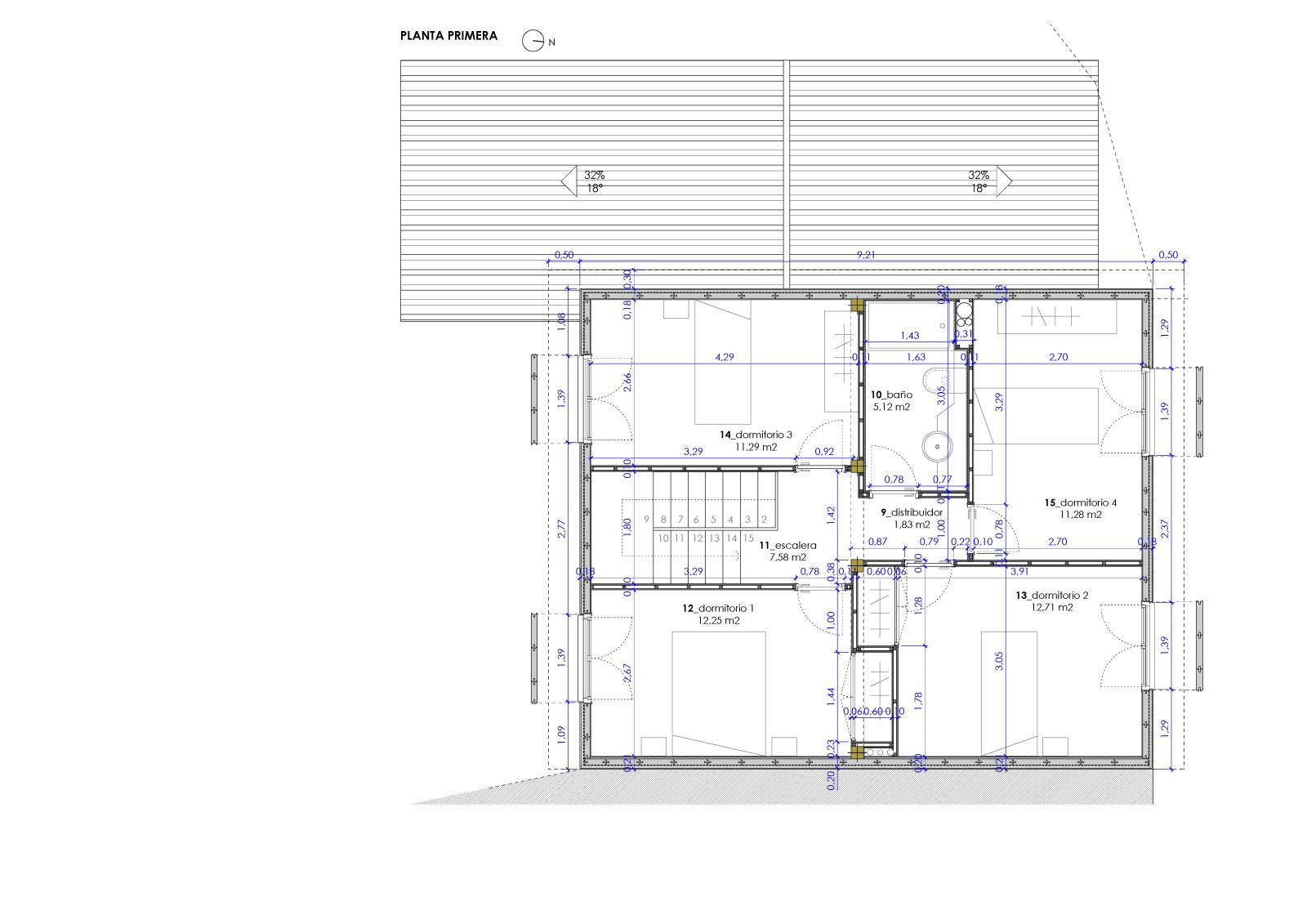
De estilo rústico, el programa del inmueble se desarrolla en dos plantas y en dos edificaciones independientes (vivienda y garaje) unificadas volumétricamente. La vivienda se compone de salón-comedor, cocina con despensa, aseo de cortesía y porche cubierto al jardín. La planta primera tiene cuatro dormitorios dobles y un baño completo. El garaje es un único espacio con acceso y salida independiente.
- 175 m²
- 2011
- Villanueva de la Peña, Palencia.













