Vivienda unifamiliar aislada que incorpora múltiples elementos que posibilitan el funcionamiento bioclimático de la vivienda: la orientación óptima, las ventilaciones naturales cruzadas, el patio interior como regulador higrotérmico, el porche que evita el sobrecalentamiento de la vivienda debido a la radiación directa en verano pero que permite ganancias energéticas en invierno, el forjado sanitario, la continuidad del aislamiento, el captador solar en cubierta para a.c.s, la caldera de biomasa, la recuperación de las aguas pluviales para su reutilización o la masiva utilización de materiales reciclados o reciclables son algunas características bioclimáticas y/o sostenibles implementadas.
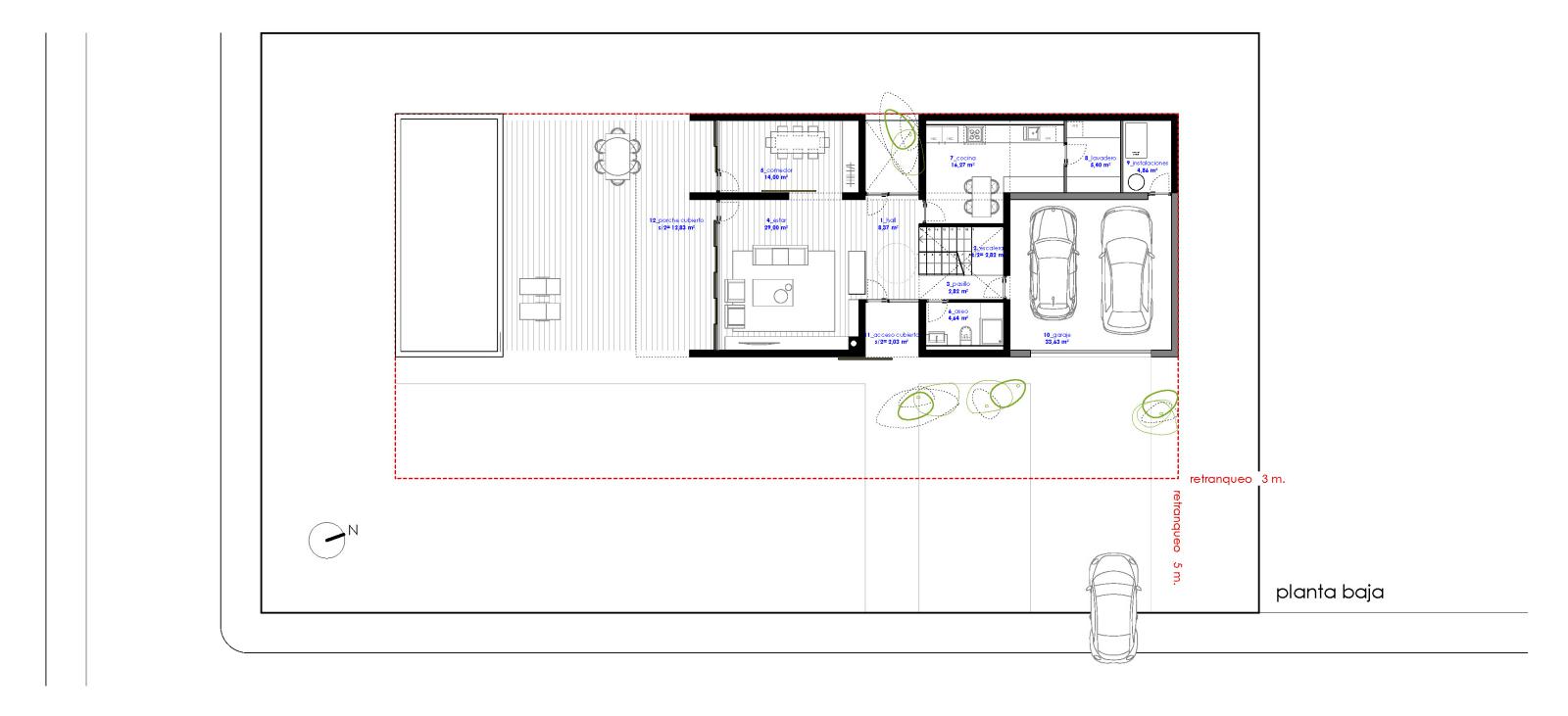
En planta baja consta de un amplio salón con comedor independiente, cocina completa con zona de lavadero, garaje para dos vehículos, sala de instalaciones, aseo de cortesía y hall de acceso. En planta primera se distribuyen tres dormitorios dobles (uno de ellos tipo suite con vestidor y baño incorporados) con terraza cubierta, otro baño completo y trastero.
- 210 m²
- 2011-
- Villaquilambre (León).







