Sergio Torre Arquitecto | Passivhaus | Casas Pasivas
646 602 302
Passivhaus
Servicios
Clientes
Premios
Proyectos
Colaboraciones
Pintura
Bio
Obras
Contacto
Blog
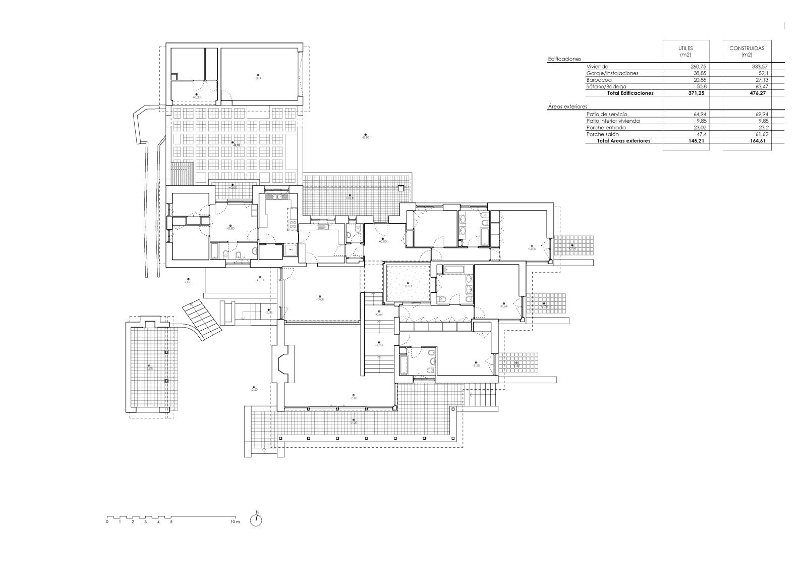
Legalización de vivienda. Cebreros (Ávila)
Categorías
Legalizaciones
Legalización de vivienda unifamiliar aislada de los años 60.
476 m²
2010
Cebreros, Ávila.
Compartir
0
Noticias relacionadas
Legalización de vivienda. Cebreros (Ávila)
15 febrero, 2016
Legalización de vivienda. Cebreros (Ávila)
Leer más
Legalización de vivienda. Las Calas, Cebreros (Ávila)
15 febrero, 2016
Legalización de vivienda. Las Calas, Cebreros (Ávila)
Leer más