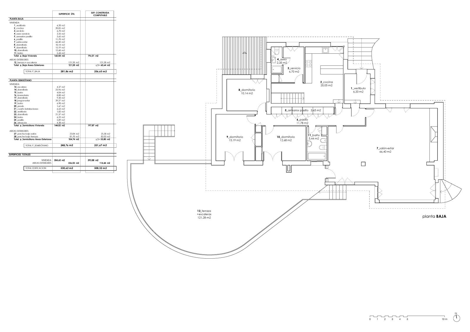
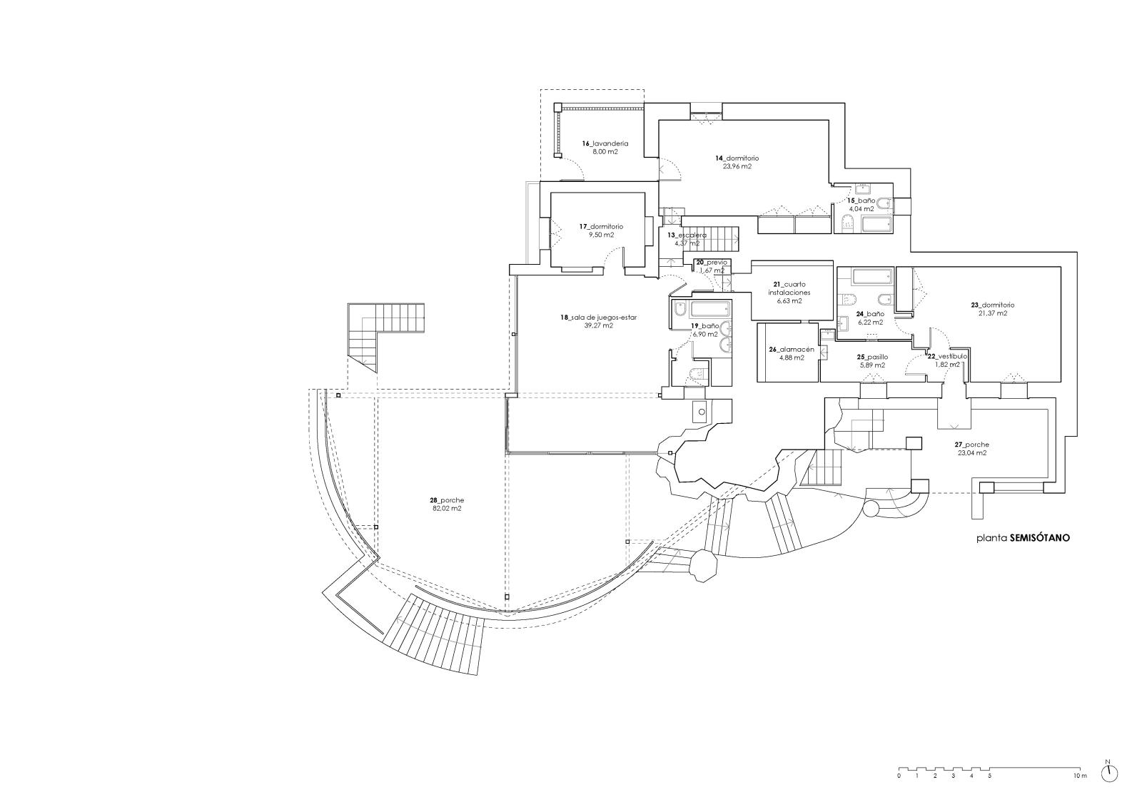
Legalización de vivienda. Las Calas, Cebreros (Ávila)